Te koop Wonen in een rustige omgeving, nabij oprit E314
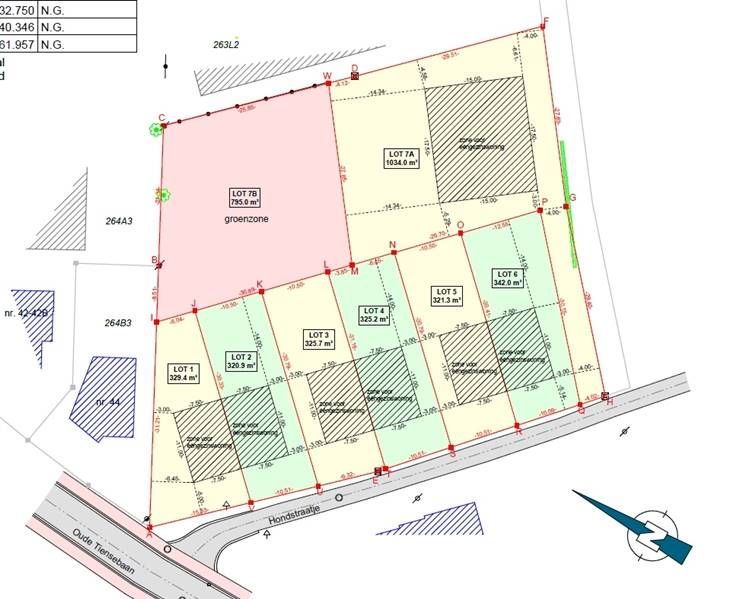
Ontdek het charmante Hondstraatje in het pittoreske Bekkevoort, waar wonen in een rustige omgeving met uitstekende bereikbaarheid centraal staat. Dit exclusieve project, bestaande uit 7 hoogwaardige eenheden, biedt u de perfecte combinatie van moderne architectuur en landelijke rust. Er zijn nog twee nieuwbouw halfopen bebouwingen, twee bouwloten voor halfopen bebouwing met vergunning en één villagrond met vergunning beschikbaar. Zo heeft u de keuze tussen genieten van het comfort van een sleutel-op-de-deur woning die kant en klaar voor u wordt afgewerkt, of kan u ook kiezen voor zelf het bouw-avontuur aan te gaan. De woningen stralen stuk voor stuk elegantie en prachtige architectuur uit. Mis deze unieke kans niet om uw droomhuis te bemachtigen in dit prachtige project. Neem vandaag nog contact op voor meer informatie en een bezichtiging. Welkom thuis in Bekkevoort!Mis deze unieke kans niet om uw droomhuis te bemachtigen in dit prachtige project. Neem vandaag nog contact op voor meer informatie en een bezichtiging. Welkom thuis in Bekkevoort!