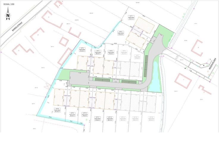
Te koop Bouwgrond voor open bebouwing op topligging
Te koop: mooi perceel bouwgrond voor open bebouwing op een rustige maar centrale ligging, 415m². Geen bouwverplichting.
Voor meer info bel naar Sara Pollet 0473 93 25 74 of mail naar sara.pollet@durabrik.be
Renovatieplicht: nee