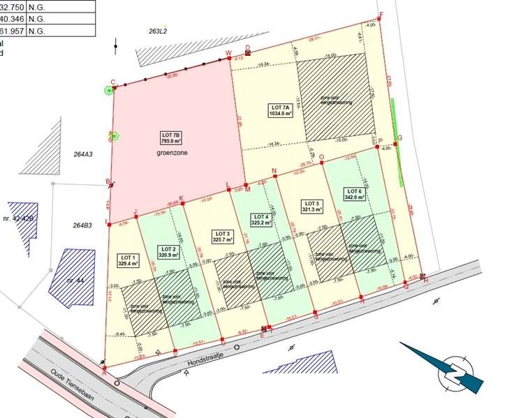
Te koop Achterin gelegen bouwgrond voor villa op 18a29ca
In het rustige en charmante Hondstraatje in Bekkevoort ligt deze uitzonderlijke bouwgrond met een reeds goedgekeurd bouwplan. Dit perceel biedt u de unieke kans om een moderne, energiezuinige woning te realiseren volgens een zorgvuldig ontworpen plan. Met een ideale ligging, op een boogscheut van de E314 en andere invalswegen, combineert deze locatie de landelijke charme van Bekkevoort met een uitstekende bereikbaarheid. De op te richten villa is achterin gelegen in tweede bouwlijn, wat een optimale rust en privacy garandeert. Het perceel meet in totaal 18a29ca. De bouwplannen voorzien in een elegant manoir-stijl ontwerp. Op de gelijkvloerse verdieping bevindt zich een ruime inkomhal met chique traphal, 2 toiletten, een zeer ruime leefruimte met open keuken, veel bergruimte, een douchekamer, een dubbele garage en een bureau of slaapkamer, Op verdieping vinden we 3 slaapkamers, een dressing, twee badkamers en een zolder die kan dienen als extra slaapkamer. Echt een pareltje! In de vergunning is het ook reeds toegestaan om een zwembad op te richten. Bouwplannen in te kijken op aanvraag. Maak snel een afspraak voor meer info via www.lissens.be.