Te koop Instapklaar appartement op toplocatie

Beschrijving van   

Vergelijk realty's

Te koop Instapklaar appartement op toplocatie

Instapklaar appartement op toplocatie Instapklaar appartement op toplocatie Instapklaar appartement op toplocatie Instapklaar appartement op toplocatie Instapklaar appartement op toplocatie Instapklaar appartement op toplocatie Instapklaar appartement op toplocatie
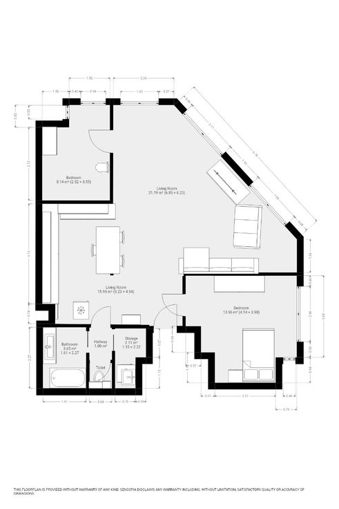
Ben je op zoek naar een instapklaar appartement met 2 slaapkamers op een toplocatie in Dendermonde? Zo gevonden! Gelegen in het centrum van Dendermonde, nabij winkels/ scholen/ park en openbaar vervoer heeft dit appartement heel wat te bieden. Alles is bereikbaar binnen handbereik. Verder zijn de lichtrijke leefruimte en ruime slaapkamer enkele andere troeven. Indeling: - GLV: gemeenschappelijke inkomhal. - 1steV: vanuit de inkomhal hebben we toegang tot de ruime lichtrijke leefruimte (31m²) met open keuken (16m²). De keuken is volledig uitgerust. Aansluitend hebben we de master bedroom(14m²) met veel lichtinval en de 2de slaapkamer (8m²). Verder beschikt het appartement over een toilet, een badkamer (4m²) met ligbad/ dubbele lavabo en een aparte berging (2m²). Ook ideaal als opbrengsteigendom. Het appartement is momenteel verhuurd. Netto rendement voor dit appartement is 3,7%! Bij dit appartement is een aankoop aan het tarief van 2% met extra korting van €1.867 op de registratierechten mogelijk! Interesse? Maak snel een vrijblijvende afspraak om dit appartement te bezichtigen!
Type vastgoed Appartement
Prijs 160.000
Bewoonbare opp. 75
Aantal slaapkamers 2
Aantal badkamers 1