Te koop Landhuis

Beschrijving van   

Vergelijk realty's

Te koop Landhuis

Landhuis Landhuis Landhuis Landhuis Landhuis Landhuis Landhuis Landhuis Landhuis
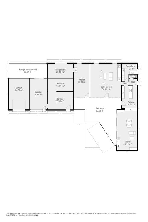
Bien rare et d’exception. Idéal pour profession libérale ou indépendant. Grande propriété de plus de 500m2 composée d’une maison d’habitation, un espace bureau, et d’un garage le tout sur plus de 3500m2 de terrain. Beaucoup de travaux effectués en 2019 (chauffage, électricité, micro station…) Le bien se compose comme suit: ▪️Maison d’habitation de 200m2 , en partie rénovée (chauffage, électricité, salle de bain neuve) : - 1 cuisine (en travaux) - 1 salon / salle à manger - 2 chambres - 1 bureau - 1 arrière cuisine - 2 toilettes - 1 salle de bain (baignoire + douche) - 1 grand espace (100m2) à aménager - 1 salle de 60m2 en cours d’aménagement - 1 atelier (30m2) ▪️ Bureaux (travaux à terminer) - 1 espace salle de réunion - 2 bureaux - 1 kitchenette et 1 toilette - 1 cour avec terrasse - 1 garage - grand parking extérieur ▪️Extérieurs - espace parking 2 places pour la maison - espace parking 4 places pour les bureaux - grande prairie à l’arrière - espace clôturé dans la partie avant Certains châssis sont neufs. Chaudière de 2019 au propane avec cuve de 2000L (chauffage sol au rez et radiateurs à l’étage) !!Bien à visiter absolument!! Beaucoup de potentiel!! Pour tous renseignements : christophe@bureaudelree.be Tél: 0472252100
Type vastgoed Huis
Prijs 595.000