Te koop Appartement

Beschrijving van   

Vergelijk realty's

Te koop Appartement

Appartement Appartement Appartement Appartement Appartement Appartement Appartement Appartement Appartement Appartement
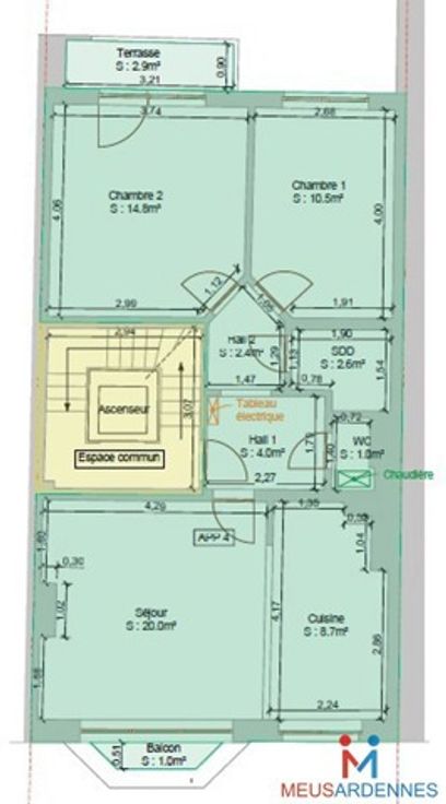
Superbe appartement en ville, proche de la gare Situé au 4e étage avec ascenseur. Compo : hall d'entrée, séjour ouvert sur une cuisine entièrement équipée, balcon , 2 belles grandes chambres dont une avec terrasse , salle de bains, toilettes séparées avec lave-mains et cave. loué 850 €/mois + charges Infos & visites : 0475 23 57 29 Renseignements donnés à titre informatif, et non contractuel. Les surfaces indiquées, mêmes reprises comme "habitables", correspondent aux surfaces mesurées dans le PEB.
Type vastgoed Appartement
Prijs 249.000
Bewoonbare opp. 77
Aantal slaapkamers 2
Aantal badkamers 1