Te koop Gebouw voor gemengd gebruik

Beschrijving van   

Vergelijk realty's

Te koop Gebouw voor gemengd gebruik

Gebouw voor gemengd gebruik Gebouw voor gemengd gebruik Gebouw voor gemengd gebruik Gebouw voor gemengd gebruik Gebouw voor gemengd gebruik Gebouw voor gemengd gebruik Gebouw voor gemengd gebruik Gebouw voor gemengd gebruik Gebouw voor gemengd gebruik Gebouw voor gemengd gebruik Gebouw voor gemengd gebruik Gebouw voor gemengd gebruik Gebouw voor gemengd gebruik Gebouw voor gemengd gebruik Gebouw voor gemengd gebruik Gebouw voor gemengd gebruik
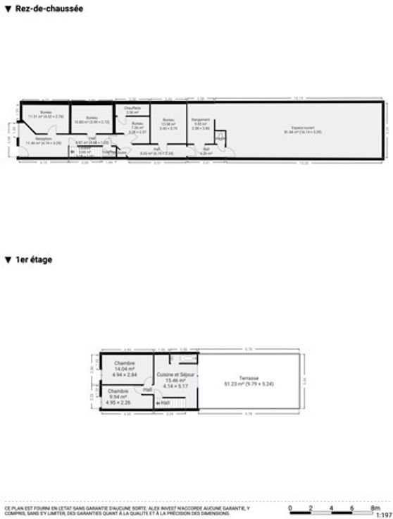
Maison de Commerce de +/- 253m2 habitables située proche de toutes les facilités et composée comme suit : REZ : Surface Commerciale de +/- 167m2 comprenant une Réception, 4 Bureaux (+/- 12,11,7,13 m2), Hall, une pièce de Rangement, 2 WC séparé et un espace Ouvert de +/- 82m2 anciennement utilisé en Salle de Sport. 1er ETAGE : Séjour comprenant une Cuisine semi-équipée, Salle de Bain, 2 Chambres (+/- 14 et 10m2) et TERRASSE de +/- 51m2. GRENIER Aménageable et CAVE. Système de Vidéosurveillance. Le rez-de-chaussée est partiellement climatisé. Idéal pour profession médicale ou libérale. Faire offre à partir de 160.000€ sous réserve de l'acceptation des propriétaires. A ne pas manquer !!
Type vastgoed Huis
Prijs 160.000
Bewoonbare opp. 253
Aantal slaapkamers 2
Aantal badkamers 1