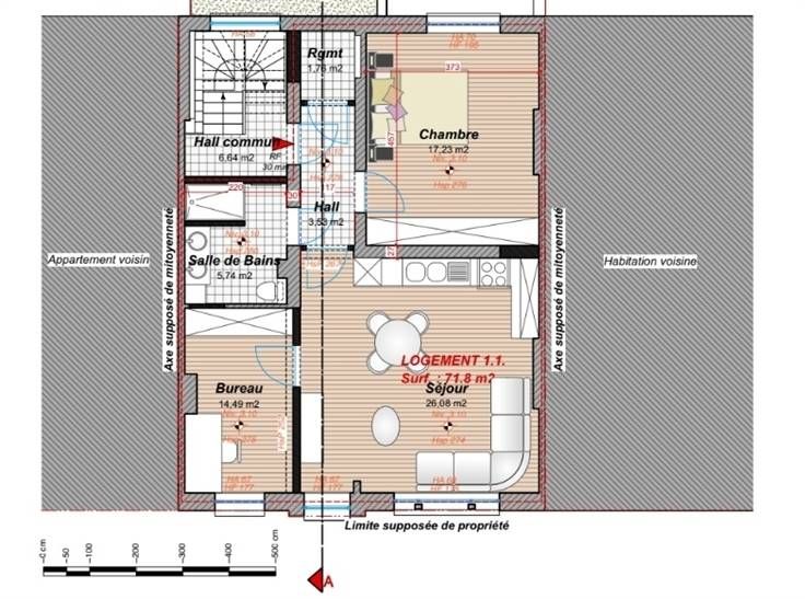
Charmant appartement met 2 slaapkamers op de 1e verdieping van een blok van 4 flats in het centrum van GILLY.
Het bestaat uit: een inkomhal, een bijkeuken, een leefruimte met een ingerichte keuken (kookplaat, afzuigkap, oven, gootsteen en meubels), 2 slaapkamers en een ingerichte douchekamer (WC, douche en 1 wastafel + spiegel en meubels).
Uitrusting :
PVC D.V. frame,
Centrale verwarming op gas,
Elektriciteitsmeter per uur,
Individuele meters (water, elektriciteit en gas)
Warm water productie op de BULEX ketel,
Radiatoren met thermostaatkranen + kamerthermostaat,
EPB B,
Parlofoon, enz.
Financieel en beschikbaarheid:
Huurprijs 750€/maand + Individuele vaste lasten: 23€/maand (regresloze verzekering tegen de huurder en onderhoud verwarmingsketel) + Gemeenschappelijke vaste lasten: 33€/maand (onderhoud gemeenschappelijke ruimten, water en elektriciteit in gemeenschappelijke ruimten en onderhoud brandblussers)
Huurwaarborg: € 1.500 (2 maanden huur)
Inventaris van de inrichting: door een expert tegen gedeelde kosten
Onmiddellijk beschikbaar
Type huurovereenkomst: 1 jaar, verlengbaar.
Voor meer informatie, bezoek onze website www.elenaimmo.be of contacteer ons op 071/16.55.29. Deze advertentie is niet bindend en kan gewijzigd worden.