Te koop Huis

Beschrijving van   

Vergelijk realty's

Te koop Huis

Huis Huis Huis Huis Huis Huis Huis Huis Huis Huis
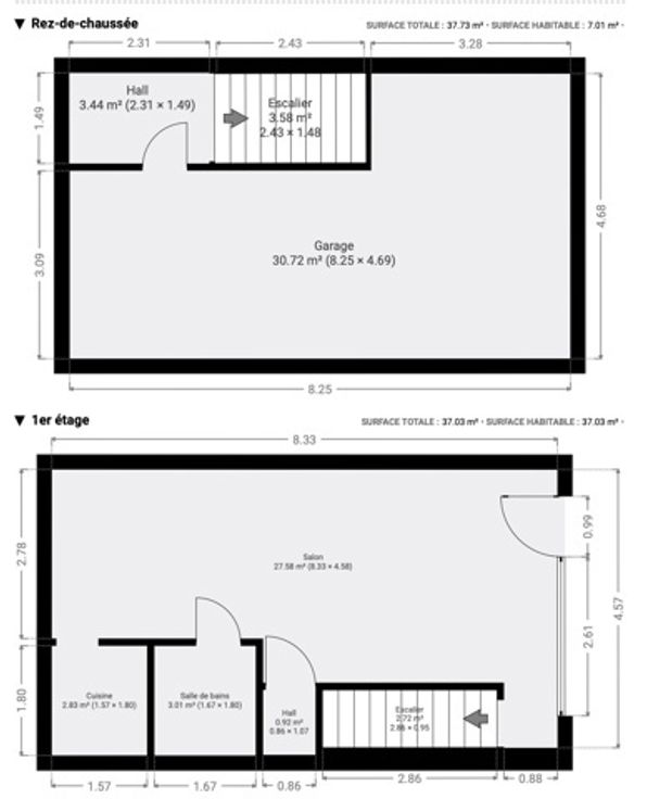
Maison Bel-étage de +/- 106m² habitables et située proche de toutes les facilités. Elle est composée comme suit : REZ : Hall d'entrée, GARAGE avec espace Buanderie. 1er ETAGE : Séjour de +/- 28m², une petite Cuisine et une salle de Douche avec WC. 2ème ETAGE : 2 Chambres communicantes (+/- 15 et 13m²). Chauffage au GAZ centrale. Le bien dispose également d'une CAVE. Faire offre à partir de 120.000€ sous réserve de l'acceptation des propriétaires. A visiter sans tarder !!!
Type vastgoed Huis
Prijs 120.000
Bewoonbare opp. 106
Aantal slaapkamers 2
Aantal badkamers 1