Te koop Bouwgrond voor halfopen bebouwing in Gijze...

Beschrijving van   

Vergelijk realty's

Te koop Bouwgrond voor halfopen bebouwing in Gijzenzele

Bouwgrond voor halfopen bebouwing in Gijzenzele Bouwgrond voor halfopen bebouwing in Gijzenzele Bouwgrond voor halfopen bebouwing in Gijzenzele Bouwgrond voor halfopen bebouwing in Gijzenzele Bouwgrond voor halfopen bebouwing in Gijzenzele Bouwgrond voor halfopen bebouwing in Gijzenzele Bouwgrond voor halfopen bebouwing in Gijzenzele Bouwgrond voor halfopen bebouwing in Gijzenzele Bouwgrond voor halfopen bebouwing in Gijzenzele Bouwgrond voor halfopen bebouwing in Gijzenzele Bouwgrond voor halfopen bebouwing in Gijzenzele Bouwgrond voor halfopen bebouwing in Gijzenzele
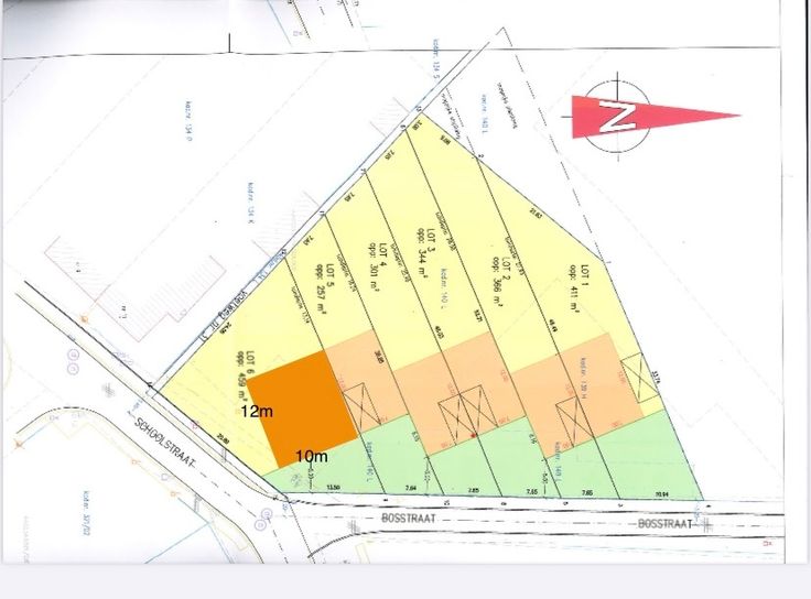
Te koop: Unieke kans! Deze bouwgrond van 459 m² ligt in een rustige en landelijke omgeving in Gijzenzele, Bosstraat 1. Het perceel maakt deel uit van een verkaveling (lot 6) en biedt tal van mogelijkheden: • Oriëntatie: Zuidwestelijke tuin, ideaal voor zonliefhebbers. • Gevelbreedte: Oostelijk gericht. • Bouwmogelijkheden: Geschikt voor een halfopen bebouwing. Er is reeds een goedkeuring om het bouwvolume te vergroten tot 10 meter breed (ipv 7m) en 12 meter diep. De woning mag een kroonlijsthoogte hebben van 6,5 meter. • Extra: Toestemming voor een tuinhuis/carport van 40 m². Toplocatie: • Slechts 4 minuten van de E40, maar geen last van verkeersgeluid. • Op 15 km van Gent-centrum, met een vlotte verbinding naar de stad. • Gelegen in een rustige, landelijke omgeving, ideaal voor wie houdt van wonen in het groen. • Nabij scholen, winkels en andere voorzieningen zoals treinstation. Deze bouwgrond combineert een landelijke, rustige ligging met een uitstekende bereikbaarheid! Vraagprijs: €199.000 Contacteer mij voor meer informatie of een bezoek: 📞 0472 45 76 23 charlotte.vandenberghe88@gmail.com
Type vastgoed Grond
Prijs 199.000