Te koop Commerciële panden

Beschrijving van   

Vergelijk realty's

Te koop Commerciële panden

Commerciële panden Commerciële panden Commerciële panden Commerciële panden Commerciële panden
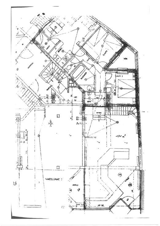
Handelspand in het Hart van De Panne. Grijp de unieke kans om eigenaar te worden van dit handelspand, centraal gelegen aan het levendige marktplein van De Panne. Deze uitstekende locatie is perfect voor elke ondernemer die zichtbaarheid en toegankelijkheid waardeert. Kenmerken: -Inclusief een ruim appartement van 65m² met 2 slaapkamers voor uw wooncomfort. -Grote kelder van 60 m², eerder ingericht voor een bakkerij, biedt veel mogelijkheden voor opslag of uitbreiding van uw onderneming. -Ideale omgeving met veel voetverkeer en nabijheid van lokale voorzieningen. Dit handelspand combineert ondernemersmogelijkheden met wooncomfort in een bruisende omgeving! Renovatieplicht: onbekend
Type vastgoed Commercieel
Prijs 430.000
Bewoonbare opp. 190
Aantal badkamers 1