Te koop Volledig te renoveren woning met tuin te E...

Beschrijving van   

Vergelijk realty's

Te koop Volledig te renoveren woning met tuin te Erembodegem!

Volledig te renoveren woning met tuin te Erembodegem! Volledig te renoveren woning met tuin te Erembodegem! Volledig te renoveren woning met tuin te Erembodegem! Volledig te renoveren woning met tuin te Erembodegem! Volledig te renoveren woning met tuin te Erembodegem!
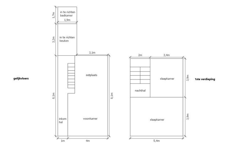
Deze woning, gelegen op een perceel van ongeveer 680 m² (opmetingsplan landmeter volgt), biedt volop mogelijkheden voor wie renovatie niet schuwt. Het gelijkvloers biedt ruimte voor het creëren van een woonkamer met eetplaats, een keuken en een badkamer. Op de verdieping kan men 2 slaapkamers creëren. Er is tevens een zolder aanwezig, toegankelijk via vaste trap, die nog extra uitbreidingsmogelijkheden biedt. Verder is er ook een handige kelder aanwezig. Achteraan bevindt zich de ruime tuin! Deze woning is het ideale renovatieproject voor wie graag een woning volledig naar eigen smaak wenst in te richten. Deze woning bevindt zich op een toplocatie in Erembodegem, met vlotte verbindingen naar Aalst en Ninove. In de directe omgeving vindt u winkels, scholen en openbaar vervoer. Tevens kortbij centrum Aalst, stadspark, Osbroek, ... Contacteer ons voor meer informatie of een bezoek ter plaatse via tijl@immotijl.be of 0477 44 86 11.
Type vastgoed Huis
Prijs 245.000
Bewoonbare opp. 157
Aantal slaapkamers 3