Te koop Moderne Nieuwbouwwoning aan de Grens van K...

Beschrijving van   

Vergelijk realty's

Te koop Moderne Nieuwbouwwoning aan de Grens van Kontich & Edegem

Moderne Nieuwbouwwoning aan de Grens van Kontich & Edegem Moderne Nieuwbouwwoning aan de Grens van Kontich & Edegem Moderne Nieuwbouwwoning aan de Grens van Kontich & Edegem Moderne Nieuwbouwwoning aan de Grens van Kontich & Edegem Moderne Nieuwbouwwoning aan de Grens van Kontich & Edegem Moderne Nieuwbouwwoning aan de Grens van Kontich & Edegem
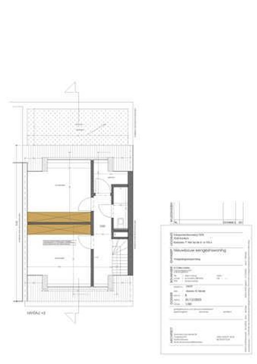
Ben je op zoek naar een stijlvolle, energiezuinige nieuwbouwwoning op een toplocatie? Deze prachtige woning is gelegen aan de grens van Kontich en Edegem en wordt opgeleverd in februari 2025. Indeling: Gelijkvloers: oprit met garage, fietsplaats en laadpaal voor elektrische voertuigen. Ruime woonkamer met open keuken en kookeiland. De tuin wordt volledig afgewerkt opgeleverd. Verder is er een inkomhal met maatkasten en een apart gastentoilet. Eerste verdieping: 2 slaapkamers en een badkamer voorzien van zowel een bad als een inloopdouche. Tweede verdieping: 2 extra slaapkamers, berging en een tweede badkamer met douche. Extra's: Ventilatiesysteem type D voor optimaal wooncomfort. 8 Zonnepanelen. De woning wordt schildersklaar opgeleverd. Mis deze kans niet om in een nieuwbouwwoning te wonen die stijl en comfort perfect combineert! Mogelijkheid tot inspraak op afwerking! P-score: A. G-score: A. Neem contact met ons op voor meer informatie.
Type vastgoed Huis
Prijs 595.000
Bewoonbare opp. 270
Aantal slaapkamers 4
Aantal badkamers 2