Te koop Penthouse

Beschrijving van   

Vergelijk realty's

Te koop Penthouse

Penthouse Penthouse Penthouse Penthouse Penthouse Penthouse Penthouse Penthouse Penthouse Penthouse Penthouse Penthouse Penthouse Penthouse Penthouse Penthouse Penthouse Penthouse Penthouse Penthouse Penthouse Penthouse Penthouse Penthouse Penthouse Penthouse Penthouse Penthouse Penthouse
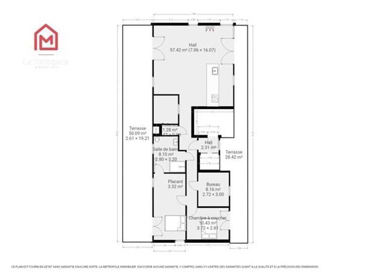
La Métropole Immobilier vous propose à la vente ce penthouse exceptionnel composé de 3 chambres et deux terrasses qui vous offriront une vue imprenable sur la ville de Thuin et son magnifique beffroi. Une fois arrivé directement dans l'appartement via l'ascenseur "privatif", vous disposerez d'un magnifique salon ouvert sur la salle à manger ainsi que sur la cuisine full équipée (îlot central, four vapeur, micro-ondes, taque induction avec hotte intégrée). Un couloir vous mènera à la buanderie, au WC, à la salle de bain (ouverte sur la chambre parentale et son dressing). Celui-ci vous conduira également dans 2 autres belles chambres. Une cave individuelle et 3 parkings privatifs intérieurs font aussi partie de la vente. Aspects techniques du bâtiment : ascenseur "privatif", électricité conforme, chauffage par le sol (via pompe à chaleur commune), châssis PVC double vitrage, Climatisation, adoucisseur privatif, vidéophone, compteurs eau/élec. individuels., stores sur mesures partout, moustiquaires ... PEB : B -> RC : 1089€ Retrouvez ce bien avec plus d'informations sur www.lametropole.be/beffroi PRIX : FAIRE OFFRE À PARTIR DE 330.000 € HTVA (!!!! BIEN EN VENTE SOUS RÉGIME TVA !!!!) SOUS RESERVE D'ACCEPTATION DU PROPRIETAIRE. Contact au 071/123.950 ou au 0477/295437 ou par mail : mo@lametropole.be Descriptif à titre informatif et non contractuel, il est susceptible de modification.
Type vastgoed Appartement
Prijs Op aanvraag
Bewoonbare opp. 110
Aantal slaapkamers 3
Aantal badkamers 1