Te koop Gits (Hooglede), Middenstr-Tillostr-V.Maerlantstr - Fase ...
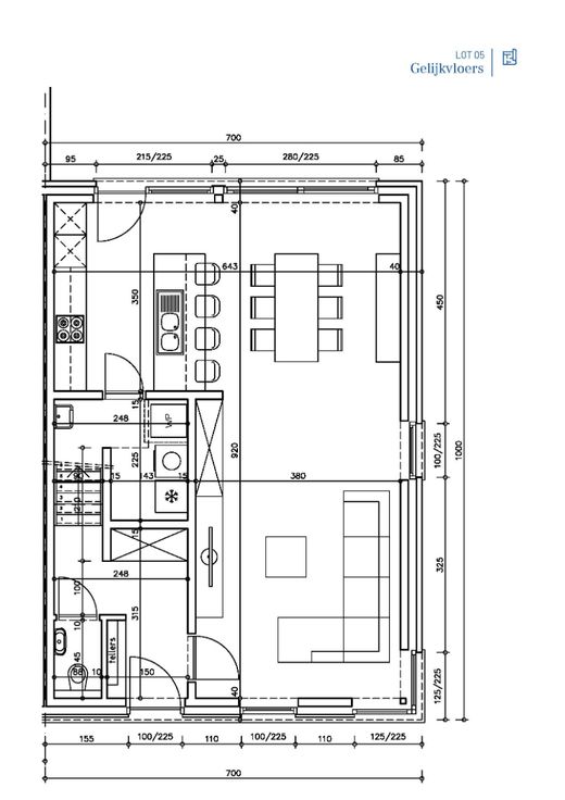
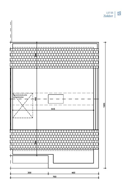
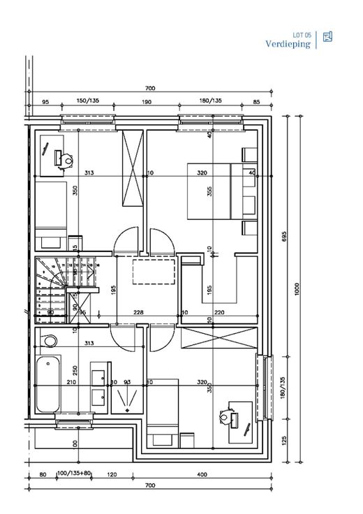
ENERGIEZUINIG WONEN - VASTE PRIJS - ALL IN AFWERKING OP MAAT! In Gits (deelgemeente van Hooglede) bouwen wij in een rustig gelegen nieuwbouwwijk 6 woningen. Deze halfopen woning (LOT 5) is gelegen op een Zuidelijk georiënteerd perceel van 278m2. De woning is voorzien van een doordachte planindeling met veel lichtinval en een optimale ruimtebenutting. Op het gelijkvloers is er een inkom met gastentoilet, een ruime leefruimte met open keuken en een praktische was/bergplaats. Op de eerste verdieping bevinden zich 3 slaapkamers, een dressing en een badkamer met bad + inloopdouche. De praktische zolder is bereikbaar met een uitschuifbare zoldertrap. In deze VASTE PRIJS zijn alle energiezuinige technieken (warmtepomp, zonnepanelen, ventilatie D, vloerverwarming op beide verdiepingen,...) én ruime afwerkingsbudgetten (keuken, badkamer, vloeren, deuren,...) inbegrepen! Zie jij jezelf hier wonen? Bel Ewout op 0497 588 888 of mail naar contact@huysmanbouw.be voor meer informatie. Meer info over het project op huysmanbouw.be
Renovatieplicht: onbekend