Te huur Appartement

Beschrijving van   

Vergelijk realty's

Te huur Appartement

Appartement Appartement Appartement Appartement Appartement Appartement Appartement Appartement Appartement
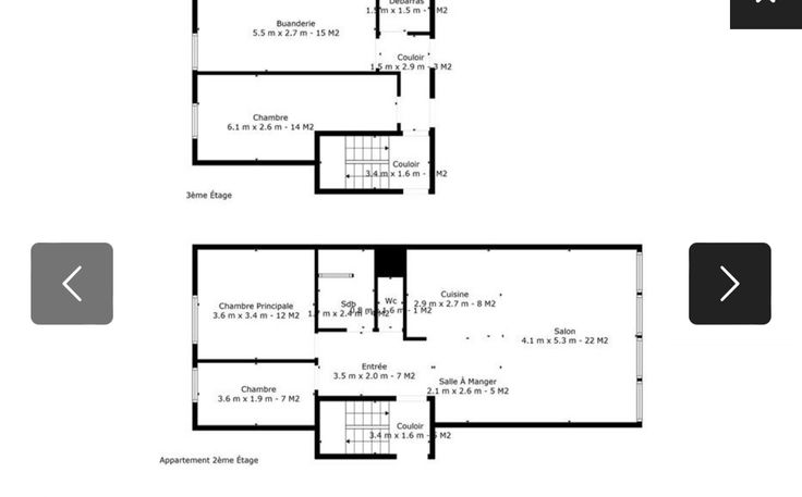
Superbe appartement très lumineux à louer, à deux pas de toutes commodités: arrêt de bus, gare des trains à 5 min à pieds, commerces dans la rue et proches des écoles. Se situe au 2e étage sans ascenseur. Il se compose d’une cuisine équipée ouverte sur un vaste salon et salle-à-manger. Wc indépendant, salle de douche entièrement refaite, 1 grande chambre et 1 plus petite chambre. Au 3e étage se trouvent 2 grandes pièces pouvant servir de buanderie et grenier/espace de stockage. Pas d’extérieur. Le forfait de charges communes reprend: chauffage sol au mazout, eau privative et des communs, électricité des communs. Seul l’électricité et l’abonnement TV-internet seront à votre charge. Caution de 2 mois à la signature du bail. Pour toute information complémentaire ou demande de visite, merci d’appeler uniquement à partir de 17h au 0498/27.34.15
Type vastgoed Appartement
Prijs 750
Aantal slaapkamers 2