Te koop APPARTEMENT 1 SLAAPKAMER

Beschrijving van   

Vergelijk realty's

Te koop APPARTEMENT 1 SLAAPKAMER

APPARTEMENT 1 SLAAPKAMER APPARTEMENT 1 SLAAPKAMER APPARTEMENT 1 SLAAPKAMER APPARTEMENT 1 SLAAPKAMER APPARTEMENT 1 SLAAPKAMER APPARTEMENT 1 SLAAPKAMER APPARTEMENT 1 SLAAPKAMER
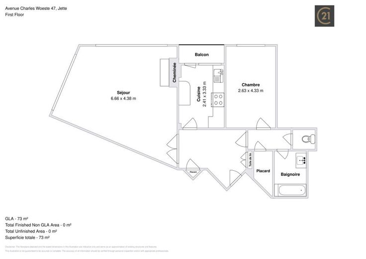
JETTE - (ref: 3925) gelegen op de Charles Woeste laan op de 4de verdieping van een gebouw met lift, appartement met een oppervlakte van +/- 75m². Het bestaat uit een inkomhal met kast, een lichte woonkamer, een ingerichte keuken, een balkon, een nachthal die leidt naar een slaapkamer, een badkamer, een berging en een apart toilet. Ontdek deze ruime flat met alle comfort in een aangename omgeving! Informatie en bezoeken 02/424.21.21
Type vastgoed Appartement
Prijs 175.000
Bewoonbare opp. 75
Aantal slaapkamers 1
Aantal badkamers 1