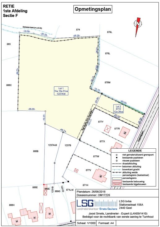
Te koop Landbouwgrond Geelsebaan (1ha22a)

Beschrijving van   

Vergelijk realty's

Te koop Landbouwgrond Geelsebaan (1ha22a)

Landbouwgrond Geelsebaan (1ha22a) Landbouwgrond Geelsebaan (1ha22a)
Landbouwgrond gelegen tussen Bosend en Geelsebaan. Toegankelijk via Geelsebaan. Vrij van pacht en onmiddellijk beschikbaar. 0477/455.817
Type vastgoed Grond
Prijs 88.000