Te huur appartement

Beschrijving van   

Vergelijk realty's

Te huur appartement

appartement appartement appartement appartement appartement appartement appartement appartement appartement appartement appartement appartement
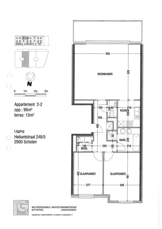
In een verzorgd gebouw vindt U dit ruim 2 slaapkamer appartement (opp.112m²) op een tweede verdieping met lift. Omvattende: inkomhal, gasten toilet met handen wasser, woonkamer (38m²) met aanpalend een zonnig zuidterras (13 m²), ing. open keuken (nieuwe oven, keramische kookplaat en frigo ), berging met wasvoorziening, badkamer met ligbad en douche, dubbele lavabo in meubel, 2 volwaardige slaapkamers, achter het gebouw is een garagebox met elektriciteit voorzien, deze is inbegrepen in de huurprijs. - het appartement heeft doorlopend keramische vloertegels. - EPC: 158    - algemene onkosten: €75 (lift en minuterie )   - beschikbaar 1 Maart 2025 .
Type vastgoed Appartement
Prijs 910
Bewoonbare opp. 96
Aantal slaapkamers 2
Aantal badkamers 1