Te koop IDEALE STARTERSWONING MET GROTE TUIN

Beschrijving van   

Vergelijk realty's

Te koop IDEALE STARTERSWONING MET GROTE TUIN

IDEALE STARTERSWONING MET GROTE TUIN IDEALE STARTERSWONING MET GROTE TUIN IDEALE STARTERSWONING MET GROTE TUIN IDEALE STARTERSWONING MET GROTE TUIN IDEALE STARTERSWONING MET GROTE TUIN IDEALE STARTERSWONING MET GROTE TUIN IDEALE STARTERSWONING MET GROTE TUIN IDEALE STARTERSWONING MET GROTE TUIN IDEALE STARTERSWONING MET GROTE TUIN IDEALE STARTERSWONING MET GROTE TUIN IDEALE STARTERSWONING MET GROTE TUIN IDEALE STARTERSWONING MET GROTE TUIN
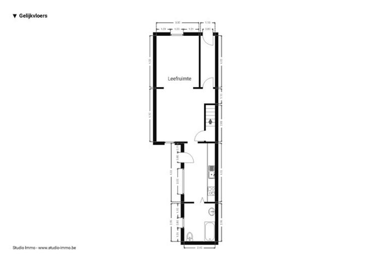
Tussen Brasschaat en Maria ter Heide vind je deze instapklare woning met veel potentieel. De rustige, groene omgeving combineert een centrale ligging met vlotte toegang tot scholen, winkels en de autostrade. Indeling: Gelijkvloers: inkomhal, gezellige leefruimte, functionele keuken met toegang tot de tuin, en badkamer met bad, lavabo en toilet. Eerste verdieping: ruime nachthal en 2 lichte slaapkamers (±17m² en ±16m²). Extra's: bergzolder, kelder (±18m²) en kruipruimte geschikt voor centrale verwarming. Troeven: Ruime, onderhoudsvriendelijke tuin met tuinhuis, PVC en aluminium ramen met dubbel glas, dakisolatie met glaswol en elektriciteit conform. Centrale verwarming eenvoudig te installeren (offertes beschikbaar, geschatte kostprijs €6.000 - €10.000). Mis deze kans niet en ontdek de mogelijkheden van deze woning. Maak een afspraak via 03 535 12 75! BEWOONBARE OPPERVLAKTE De vermelde “bewoonbare oppervlakte” is gebaseerd op de “bruikbare vloeroppervlakte” zoals vermeld in het EPC. RENOVATIEPLICHT Gebouwen met een energielabel “E” of “F” zullen verplicht binnen de 5 jaar energetisch gerenoveerd moeten worden en dit zodat ze minstens over een energielabel “D” beschikken. Bij dit pand zal de renovatieplicht dus van toepassing zijn. De woning is niet gelegen in watergevoelig open ruimte gebied.
Type vastgoed Huis
Prijs 258.000
Bewoonbare opp. 101
Aantal slaapkamers 2
Aantal badkamers 1