Te huur Penthouse

Beschrijving van   

Vergelijk realty's

Te huur Penthouse

Penthouse Penthouse Penthouse Penthouse Penthouse Penthouse Penthouse Penthouse Penthouse Penthouse Penthouse Penthouse Penthouse Penthouse Penthouse Penthouse Penthouse Penthouse Penthouse
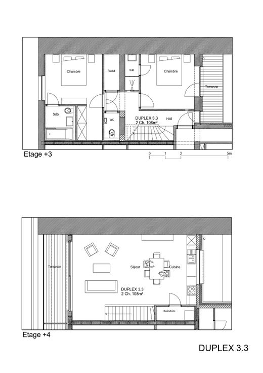
Entre place Ambiorix et Plasky, ce duplex-penthouse 2 chambres dans un immeuble entièrement rénové aux dernières normes (nouvelle chaudière, nouvelles fenêtres double vitrage, ventilation active, etc.) jouit d'un excellent PEB C+ et d'une luminosité sans égal grâce à son excellente orientation. Il se compose comme suit : un hall d'entrée, 2 chambres lumineuses (salle de bain ventilée privative pour chacune), une grande cuisine full-équipée ouverte sur une terrasse orientée sud-est, buanderie ventilée. Parlophonie. Local vélo sécurisé. Espace de rangement. Loyer : 1900€ Charges : 125€ (frais de gérance, nettoyage des communs, entretien matériel incendie) Tous les compteurs sont séparés.
Type vastgoed Appartement
Prijs 1.900
Bewoonbare opp. 108
Aantal slaapkamers 2
Aantal badkamers 1