Te huur Penthouse

Beschrijving van   

Vergelijk realty's

Te huur Penthouse

Penthouse Penthouse Penthouse Penthouse Penthouse Penthouse Penthouse Penthouse Penthouse Penthouse Penthouse Penthouse Penthouse Penthouse Penthouse Penthouse Penthouse Penthouse Penthouse Penthouse
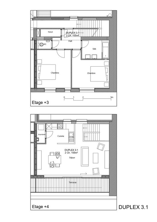
Entre place Ambiorix et Plasky, ce duplex-penthouse 2 chambres dans un immeuble entièrement rénové aux dernières normes (nouvelle chaudière, nouvelles fenêtres double vitrage, ventilation active, etc.) jouit d'un excellent PEB C et d'une luminosité sans égal ! Il se compose comme suit : un hall d'entrée, 2 chambres lumineuses, une grande cuisine full-équipée ouverte sur une terrasse orientée sud-est, salle de bain et buanderie ventilées. Parlophonie. Local vélo sécurisé. Loyer : 1900€ Charges : 125€ (frais de gérance, nettoyage des communs, entretien du matériel incendie) Tous les compteurs sont séparés.
Type vastgoed Appartement
Prijs 1.900
Bewoonbare opp. 105
Aantal slaapkamers 2
Aantal badkamers 1