Te koop Duplex

Beschrijving van   

Vergelijk realty's

Te koop Duplex

Duplex Duplex Duplex Duplex Duplex Duplex Duplex Duplex
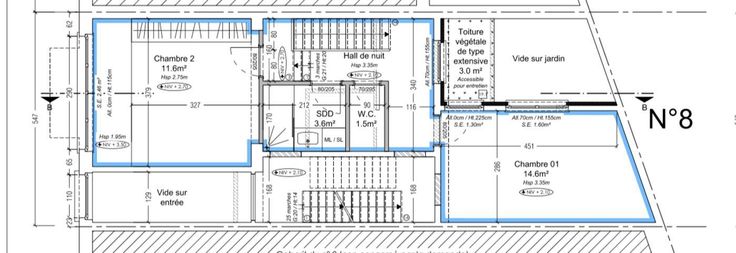
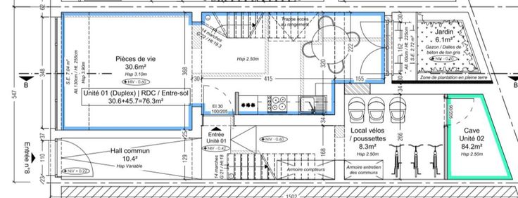
SCHAERBEEK - REF : 5208373 - In een woonwijk dicht bij alle voorzieningen, bieden wij deze mooie duplex aan in een klein condominium zonder kosten. De begane grond bestaat uit een ruime woonkamer met open keuken en een binnenplaats. Op de tussenverdieping bevinden zich twee slaapkamers, een nachthal, een badkamer en een apart toilet. Belangrijke details: momenteel verdeeld in 4 kleine eenheden, vergunning te respecteren, VEEL werk te doen, geen kosten in het gebouw, nieuwe verdeling, intercom, geprojecteerde situatie van de flat in de foto's, vergunning beschikbaar op aanvraag. Meer informatie? Neem contact op met uw Immobilière agentschap op 0496/70.83.70. of bezoek onze website www.perception-immobiliere.be voor meer informatie.
Type vastgoed Appartement
Prijs Op aanvraag
Bewoonbare opp. 75
Aantal slaapkamers 2
Aantal badkamers 1