Te koop Bouwgrond met bouwvergunning en nieuw te b...

Beschrijving van   

Vergelijk realty's

Te koop Bouwgrond met bouwvergunning en nieuw te bouwen woning

Bouwgrond met bouwvergunning en nieuw te bouwen woning Bouwgrond met bouwvergunning en nieuw te bouwen woning Bouwgrond met bouwvergunning en nieuw te bouwen woning Bouwgrond met bouwvergunning en nieuw te bouwen woning
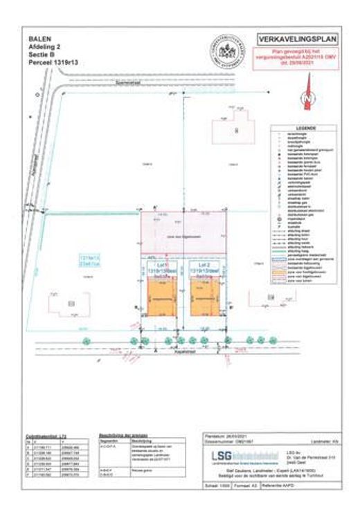
Ruim en privacy biedend wonen? Het kan op deze zeer gunstig gelegen bouwgrond voor open bebouwing mét bouwvergunning = onmiddellijk starten met bouwen! De huidige vergunning voorziet een woning met 3 slaapkamers, 2 badkamers, open leefruimte, keuken, bureau, berging, ruime tuin met indien gewenst XXL bijgebouw en zwembad (beide voorzien bouwvergunning). Deze volledig gelijkvloerse woning heeft een bewoonbare oppervlakte van +/- 225m² en is gelegen op een boogscheut van enkele winkels, supermarkten, bakkers, apotheek, kleuterscholen, basisschool, tal van sportfaciliteiten, horeca, fiets -en wandelroutes, zo ook is recreatiedomein de Keiheuvel vlakbij gelegen. Mogelijkheid start met bouwen in januari 2025. Alle goedkeuringen reeds aanwezig, inclusief alle plannen, meetstaten, architectenplan, offertes en mogelijke samenwerking bouwfirma. Offertes woning en dergelijke te bespreken op ons kantoor. Voor de startklare prijs van 179.000 euro. De ideale gezinswoning waar thuiswerken ook mogelijk is. Interesse in deze opportuniteit? Voor meer informatie/toelichtingen, contacteer ons kantoor. 014/82.15.15.
Type vastgoed Grond
Prijs 179.000