Te koop Loft

Beschrijving van   

Vergelijk realty's

Te koop Loft

Loft Loft Loft Loft Loft Loft Loft Loft Loft Loft Loft Loft Loft
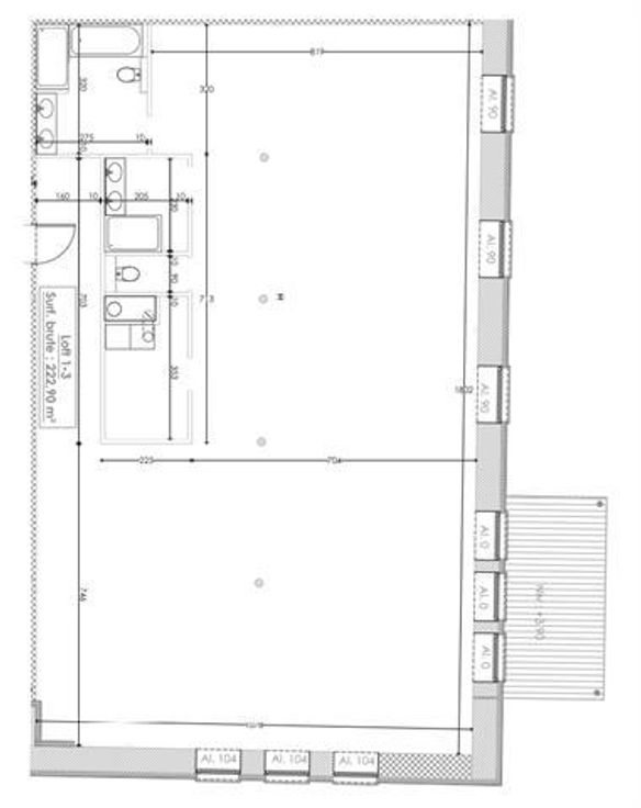
6 lofts en gros œuvre fermé situé au 1er étage d'un ancien bâtiment industriel et d'un site entièrement revitalisé et transformé. Le bâtiment est équipée d'ascenseurs, de plusieurs places de parking, des matériaux de qualités et en ordre de conformité par rapport aux exigences de la ville. Le 6ème loft bénéficie d'une surface de 256M2 (mur extérieur). Dans les lofts sont inclus: maçonneries extérieurs, châssis triple vitrage PVC, tablettes de fenêtre, arrivées: eau/électricité/gaz/parlophone/téléphonie, cheminées générales pour les évacuation de gaz, les décharges et portes RF. Dans les communs sont inclus: ascenseurs, détection et matériel incendie, éclairage automatique, marches d'escalier en pierre bleue, portes règlementées et peinture des anciens murs et plafonds. Situation idéale : proche du centre-ville, des commerces, des écoles, des transports et vue dégagée sur la campagne environnante. Vendu sous le régime des droits d'enregistrements En option: place de parking pour 5.500 euros hors frais. Le projet répond aux normes exigées par la Région wallonne. Certificat disponible au bureau.
Type vastgoed Appartement
Prijs Op aanvraag
Bewoonbare opp. 223
Aantal slaapkamers 2
Aantal badkamers 2