Te koop Bouwgrond met goedgekeurde plannen voor 2 app

Beschrijving van   

Vergelijk realty's

Te koop Bouwgrond met goedgekeurde plannen voor 2 app

Bouwgrond met goedgekeurde plannen voor 2 app Bouwgrond met goedgekeurde plannen voor 2 app Bouwgrond met goedgekeurde plannen voor 2 app Bouwgrond met goedgekeurde plannen voor 2 app Bouwgrond met goedgekeurde plannen voor 2 app Bouwgrond met goedgekeurde plannen voor 2 app Bouwgrond met goedgekeurde plannen voor 2 app Bouwgrond met goedgekeurde plannen voor 2 app Bouwgrond met goedgekeurde plannen voor 2 app Bouwgrond met goedgekeurde plannen voor 2 app
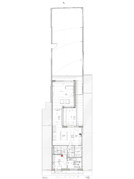
Bouwgrond te koop in Eeklo!  Deze grond is zeer vlot bereikbaar en biedt parkeermogelijkheden in de straat . Gelegen in een gezellige buurt , net buiten het drukke centrum , geniet je hier van rust en ook van de nabijheid van alle nodige voorzieningen . Het centrum van Eeklo is op wandelafstand , en je vindt openbaar vervoer, winkels, scholen, en horeca in de directe omgeving. Ook belangrijke invalswegen zijn makkelijk te bereiken. Voor liefhebbers van natuur en sport is er goed nieuws: de grond ligt vlakbij het Heldenpark en het sportplein , perfect voor ontspanning en sportieveactiviteiten. Bovendien zijn er reeds goedgekeurde plannen beschikbaar voor de bouw van twee appartementen op deze grond , wat een geweldige investeringskans biedt.  Met al deze voordelen is dit de ideale locatie voor jouw bouwprojec t in een levendige maar toch rustige omgeving . Aarzel niet en grijp deze unieke kans om jouw droomproject te realiseren in het hart van Eeklo! ERA THUIS, zorgt voor je huis!
Type vastgoed Grond
Prijs 159.000