Te koop Huis

Beschrijving van   

Vergelijk realty's

Te koop Huis

Huis Huis Huis Huis Huis Huis Huis Huis Huis Huis Huis Huis Huis Huis Huis Huis Huis Huis Huis Huis Huis Huis Huis Huis Huis Huis
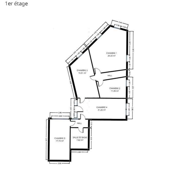
Sorry er is geen nederlandse vertaling beschikbaar. Express Immo Prestige vous propose de découvrir cette belle opportunité à saisir:  idéalement située et proche des axes autoroutiers à Chatelineau !! Cet  ensemble immobilier de 230 m2 composé d’un appartement de 120 m2 et d’un rez commercial actuellement exploité par une pharmacie. Mais peut également convenir uniquement comme maison d'habitation. Composition :niv-1 : cave Rez de chaussée commercial d’une superficie de 110 m2 , réparti comme suit : salle d’accueil, bureau, salle à manger, cuisine et garage avec cour intérieure. Niv 1 :hall de nuit, 5 grandes chambres ou  pièces de vie de 11,17,19,21 et 30 m2, salle de bain. Niv 2 : grenier à aménager. Infos techniques : compteurs électrique bi horaire, châssis dv en PVC, chauffage central mazout, pour le rez de chaussée celui-ci est équipé d’une pompe à chaleur récente ! Avec son potentiel, le batiment offre différentes possibilités d’exploitation !! Peb E : 384kwh/m².an , code unique 20240222009335 Prix : 259000 euros. Pour plus d’informations et/ou une visite, n’hésitez pas à nous contacter au 0499/199393 A visiter sans tarder !!
Type vastgoed Commercieel
Prijs 259.000
Bewoonbare opp. 230
Aantal badkamers 1