Te koop Kantoor>100m2

Beschrijving van   

Vergelijk realty's

Te koop Kantoor>100m2

Kantoor>100m2 Kantoor>100m2 Kantoor>100m2 Kantoor>100m2 Kantoor>100m2 Kantoor>100m2 Kantoor>100m2 Kantoor>100m2 Kantoor>100m2 Kantoor>100m2 Kantoor>100m2 Kantoor>100m2 Kantoor>100m2
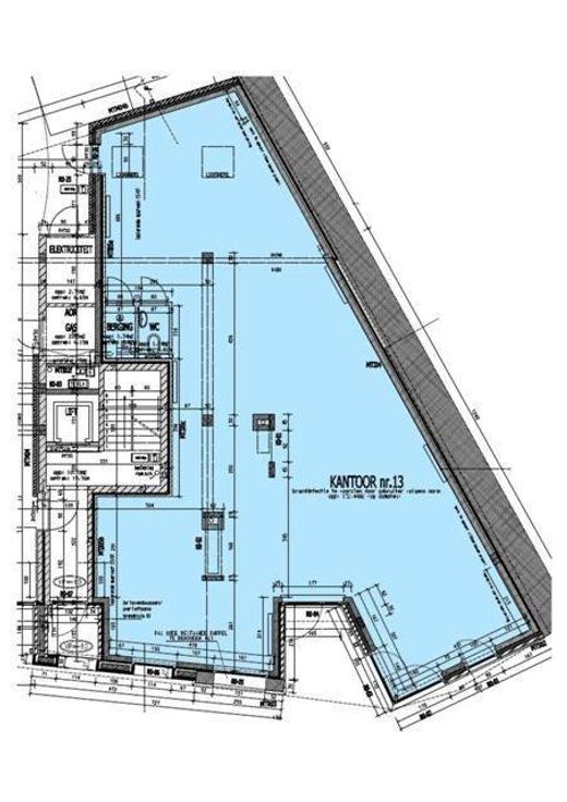
RESIDENTIE SAINT MARTIN: kantoorruimte op gelijkvloers: Kantoorruimte bestaande uit een kantoor van 133 m2, een wc, een berging, uitgang achteraan. Een overdekte privatieve parkeerplaats in de residentie. Opmerkingen: zeer goede commerciële ligging. Prijs voor de kantoorruimte casco
Type vastgoed Commercieel
Prijs 190.621
Bewoonbare opp. 133