Te koop Bel-etage

Beschrijving van   

Vergelijk realty's

Te koop Bel-etage

Bel-etage Bel-etage Bel-etage Bel-etage Bel-etage Bel-etage Bel-etage Bel-etage Bel-etage Bel-etage Bel-etage Bel-etage Bel-etage Bel-etage
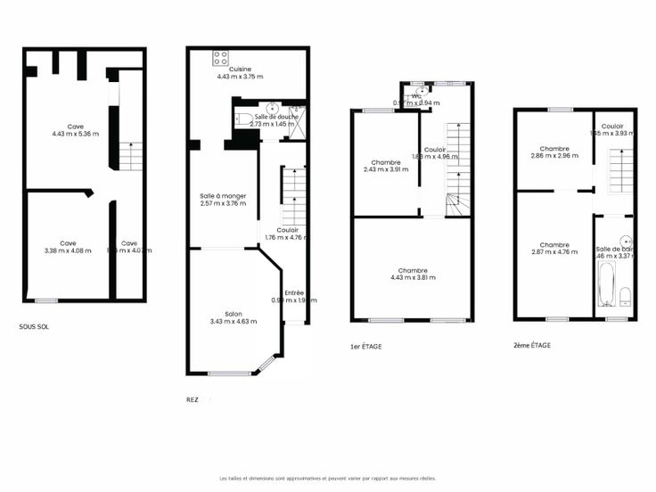
À Vendre : Superbe Maison de 2 Étages à Anderlecht VIDEO disponible sur notre site : https://www.immorenier.be/achat,maison-a-vendre-maison-4-chambres-a-anderlecht,I-241203 Découvrez cette magnifique maison de 2 étages, idéalement située à Anderlecht, offrant un cadre de vie exceptionnel à proximité de nombreux commerces, services et transports en commun. Profitez également de la proximité d'espaces verts tels que le parc Astrid, parfait pour vos moments de détente en plein air. Caractéristiques principales : Surface habitable : 161m² Chambres : 4 chambres spacieuses, idéales pour accueillir une grande famille ou pour aménager des espaces de travail à domicile. Cuisine équipée : Une cuisine moderne et entièrement équipée, prête à satisfaire tous vos besoins culinaires. Living : Un grand espace de vie lumineux, parfait pour se détendre en famille ou recevoir des invités. Salles de bain et de douche : Une salle de bain ainsi qu'une salle de douche modernes avec WC intégré, offrant tout le confort nécessaire. Caves : Des caves pratiquent pour le stockage supplémentaire. Sa localisation privilégiée vous permet de profiter de toutes les commodités urbaines tout en étant à quelques pas de la nature. Panneaux solaire : offrant une solution écologique et économique pour vos besoins énergétiques. Ne manquez pas cette opportunité unique d'acquérir une maison alliant confort, espace et praticité dans un quartier dynamique et recherché. Contactez-nous dès aujourd'hui
Type vastgoed Huis
Prijs 339.000
Bewoonbare opp. 156
Aantal slaapkamers 4
Aantal badkamers 1