Te huur Handelszaak

Beschrijving van   

Vergelijk realty's

Te huur Handelszaak

Handelszaak Handelszaak Handelszaak Handelszaak Handelszaak Handelszaak Handelszaak Handelszaak Handelszaak Handelszaak Handelszaak
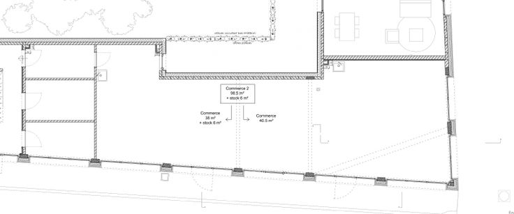
L’immobilière de la Sille a le plaisir de vous présenter cet espace d’exception en plein centre de Silly, à proximité directe de la place communale et du futur parking de plus de 60 places. Située dans le centre névralgique de la commune, cette surface commerciale de près de 100m² vous séduira par sa localisation et sa luminosité. Vous souhaitez lancer votre business ? Ou vous souhaitez développer votre activité professionnelle ? Bureau, commerce, …ce vaste local est fait pour vous ! Il se compose d’une spacieuse surface de +/-98m², d’une pièce de stockage de +/-6m², et d’un petit espace extérieur. Il bénéficie d’une excellente visibilité, d’une part grâce à sa très large vitrine, et d’autre part grâce au trafic généré par la proximité de 2 écoles, de multiples commodités (boucherie, pharmacie, Proxy Delhaize, restaurants, salon de coiffure, marché hebdomadaire, …), et de la gare de Silly convoitée par de nombreux navetteurs. Le bien étant nouvellement construit et au stade du gros-œuvre, vous pourrez laisser libre cours à votre imagination en termes d’aménagements. Loyer : 1075€/mois (en gros-œuvre). Possibilité d’aménagement partiel à charge du bailleur, moyennant révision du loyer. Charges communes : 100€/mois (forfait). Précompte immobilier à charge du locataire. Plus d'infos sur https://www.immo-sille.be/detailsbienl.html?id=106
Type vastgoed Commercieel
Prijs 1.075
Bewoonbare opp. 104