Te huur Kantoren

Beschrijving van   

Vergelijk realty's

Te huur Kantoren

Kantoren Kantoren Kantoren Kantoren
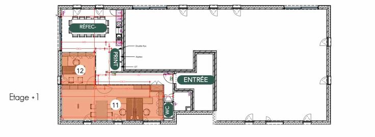
Espace bureau d'une superficie 84m2, situé au 1er étage. Possibilité de 9 postes de travail. Immeuble pourvu d'un ascenseur, 4 emplacements parkings extérieurs personnel + visiteurs. Visites sur RDV Contact: commercial@lamyconstruction.lu- Tel LU: 00352.27.86.21.30 ou Tel BE: 0471.95.45.29 Possibilité de l’ensemble : Surface totale de 390m2( 30 postes de travail + 20 parkings)) : 7800 euros ht /mois Surface de 83,90m2 ( 9 postes de travail+ 4 parkings) : 1721,64€/mois Surface de 305,96m2 (21 postes de travail + 15 parkings) : 6278,36€/mois
Type vastgoed Commercieel
Prijs 1.721