Te koop Bouwgrond

Beschrijving van   

Vergelijk realty's

Te koop Bouwgrond

Bouwgrond Bouwgrond Bouwgrond
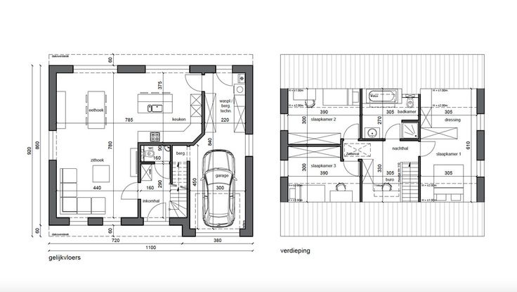
In een rustige straat, op wandelafstand van de kerk van Hillegem bevindt zich dit perceel bouwgrond van 743m2, geschikt voor het bouwen van een open bebouwing. Deze eigendom is gelegen in nabijheid van diverse voorzieningen zoals bakker, restaurant, supermarkten, openbaar vervoer,... Bovendien bent u via de N46 op amper 2min van de N42 richting Wetteren. Hierdoor heeft het perceel ook een uiterst gunstige bereikbaarheid. Het perceel heeft een breedte van +/- 22m en diepte van +/- 33,7m. Verkavelingsvoorschriften kunnen bekeken worden via de website. Verschillende bouwstijlen mogelijk. Visualisatie van een woning die mogelijks (geen verplichting) zou kunnen gebouwd worden mits navraag bij stedenbouw, weergegeven door NB-projects: tobias@nb-projects.be Opgelet: het perceel loopt hellend naar beneden en dit is niet zichtbaar op de beelden van de visualisaties maar wel op de foto van de huidige situatie ter plaatse. Dit is een vanaf prijs. Exclusief te koop aangeboden via de Oximo online verkoopsprocedure. Voor registratie en aanvaarding van de verkoopsvoorwaarden zie www.oximo.be. Renovatieplicht: nee
Type vastgoed Grond
Prijs 170.000