Te huur Ruim en centraal gelegen handelspand te huur

Beschrijving van   

Vergelijk realty's

Te huur Ruim en centraal gelegen handelspand te huur

Ruim en centraal gelegen handelspand te huur Ruim en centraal gelegen handelspand te huur Ruim en centraal gelegen handelspand te huur Ruim en centraal gelegen handelspand te huur Ruim en centraal gelegen handelspand te huur Ruim en centraal gelegen handelspand te huur
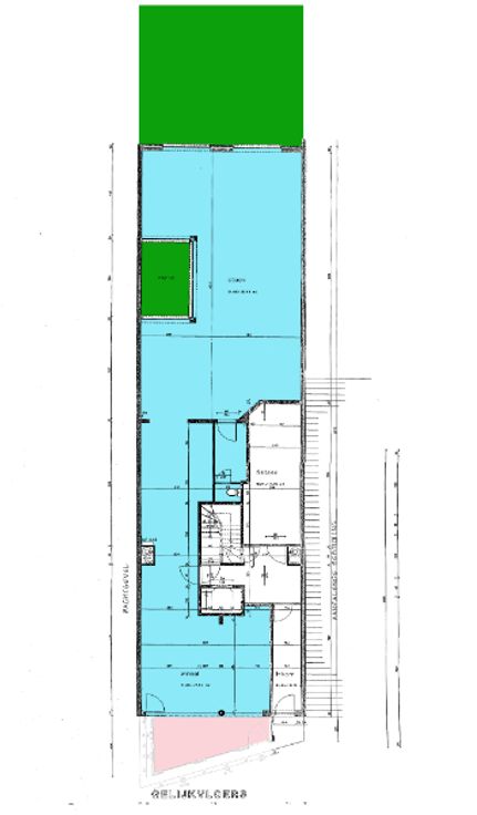
Ruim handelspand (168m²) met diverse mogelijkheden te huur. Centraal gelegen in het centrum van Oostduinkerke-Bad, op de Koninklijke Baan tussen Oostduinkerke en Nieuwpoort. Naast het handelspand omvat het pand ook nog 2 privatieve kelderbergingen met een oppervlakte van 17m² en 3m².  Een bezoek kan steeds ingepland worden mits een afspraak vooraf.  Renovatieplicht: onbekend
Type vastgoed Commercieel
Prijs 1.650