Te koop Knappe bouwgrond voor HOB op 620m²

Beschrijving van   

Vergelijk realty's

Te koop Knappe bouwgrond voor HOB op 620m²

Knappe bouwgrond voor HOB op 620m² Knappe bouwgrond voor HOB op 620m² Knappe bouwgrond voor HOB op 620m² Knappe bouwgrond voor HOB op 620m² Knappe bouwgrond voor HOB op 620m² Knappe bouwgrond voor HOB op 620m² Knappe bouwgrond voor HOB op 620m² Knappe bouwgrond voor HOB op 620m²
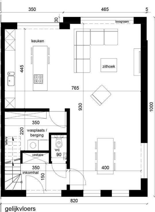
Beleef uw woondroom op Lot 4 en Lot 8! Dit perceel van 620 vierkante meter is perfect voor een halfopen bebouwing. Gelegen in een groene omgeving, zonder doorgaand verkeer en met alle voorzieningen binnen handbereik. De nabijheid van de fietsnelweg maakt deze locatie ideaal voor een actieve levensstijl. Mis deze kans niet om uw droomhuis te realiseren op een unieke locatie. Neem snel contact op voor meer informatie en maak uw droom waar! Bel ons op het nummer: 052/46.38.03 en wie weet tot binnenkort!
Type vastgoed Grond
Prijs 165.000