Te koop Nieuw te Bouwen: Halfopen Woning op Lot 4 + 8

Beschrijving van   

Vergelijk realty's

Te koop Nieuw te Bouwen: Halfopen Woning op Lot 4 + 8

Nieuw te Bouwen: Halfopen Woning op Lot 4 + 8 Nieuw te Bouwen: Halfopen Woning op Lot 4 + 8 Nieuw te Bouwen: Halfopen Woning op Lot 4 + 8 Nieuw te Bouwen: Halfopen Woning op Lot 4 + 8 Nieuw te Bouwen: Halfopen Woning op Lot 4 + 8 Nieuw te Bouwen: Halfopen Woning op Lot 4 + 8 Nieuw te Bouwen: Halfopen Woning op Lot 4 + 8 Nieuw te Bouwen: Halfopen Woning op Lot 4 + 8
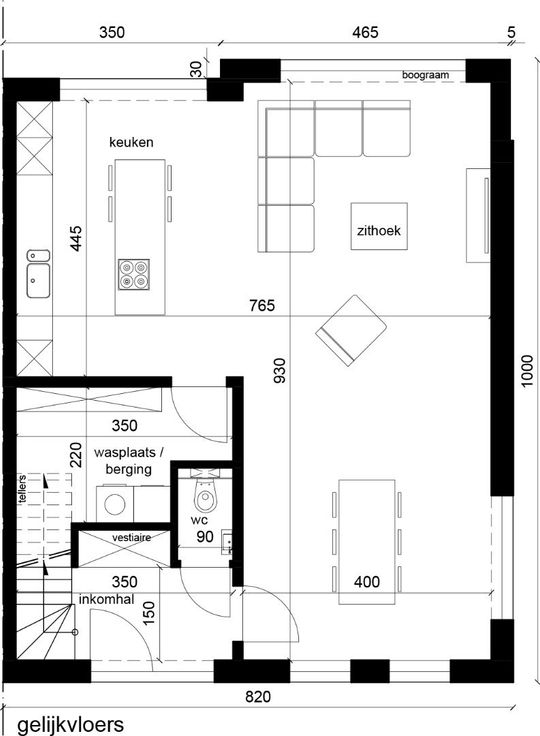
Ontwerp en bouw uw droomwoning op Lot 4 en Lot 8. Deze percelen, samen 620 vierkante meter, zijn ideaal voor een halfopen bebouwing. Creëer een moderne en comfortabele leefomgeving in een groene omgeving zonder doorgaand verkeer. Alle voorzieningen en de fietsnelweg zijn dichtbij, wat zorgt voor een perfecte balans tussen bereikbaarheid en een actieve levensstijl. Neem vandaag nog contact met ons op en maak uw woonwens werkelijkheid! Bel ons op het nummer: 052/46.38.03 en wie weet tot binnenkort!
Type vastgoed Huis
Prijs 473.969
Aantal slaapkamers 3