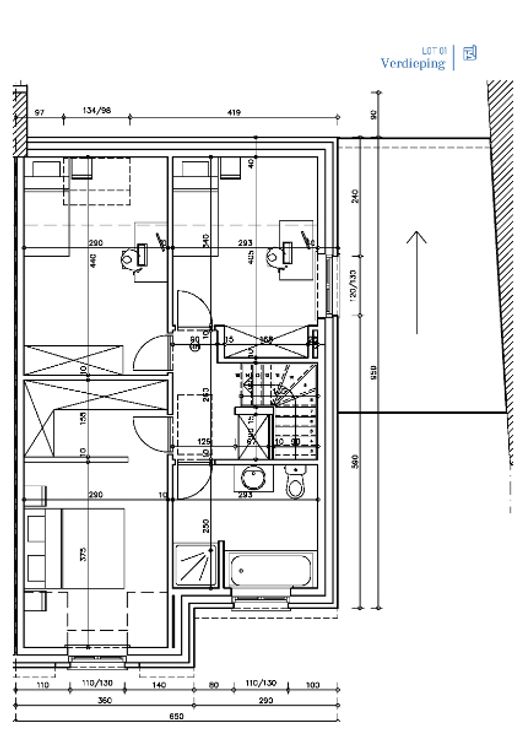
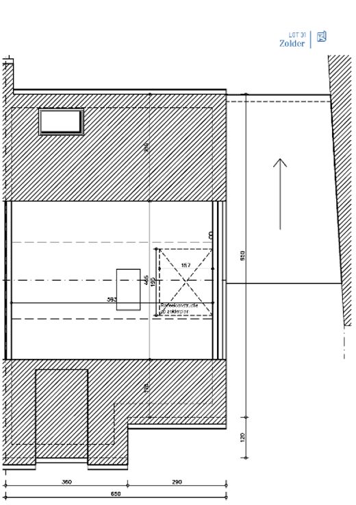
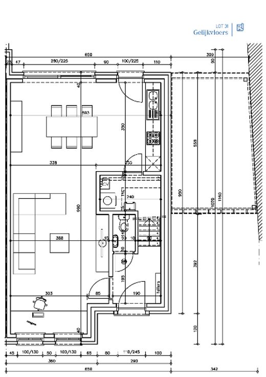
Lot 1- landelijke halfopen nieuwbouwwoning op 310m2. Op het gelijkvloers is er een inkom met gastentoilet, een ruime en lichtrijke leefruimte met open keuken en een praktische berg/wasplaats voorzien. Op de eerste verdieping zijn er 3 slaapkamers, een dressing en een badkamer met bad en douche. De praktische zolder is toegankelijk met uitschuifbare zoldertrap. De interieurafwerking van de woning is 100% op maat. Je kiest dus zelf alle afwerkingsmaterialen. Onze interieurvormgevers begeleiden je graag bij het maken van alle afwerkingskeuzes. Zo maak je van je nieuwe huis, een, echte (t)huis. De woningen zijn sowieso voorzien van energiezuinige technieken: standaard is een warmtepomp en vloerverwarming op het gelijkvloers + verdieping inbegrepen. Benieuw naar het volledige lastenboek? Bel of mail ons voor meer informatie. Onze bouwadviseur Ewout (0497 588 888) begeleidt je graag op weg naar je nieuwe (t)huis.
Renovatieplicht: onbekend