Te koop Appartement

Beschrijving van   

Vergelijk realty's

Te koop Appartement

Appartement Appartement Appartement
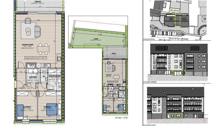
C’est au cœur de Beauraing, sur la Place de Seurre, que ce bien a été érigé. Il s’agit d’un emplacement de choix, à deux pas de toutes les facilités ! Actuellement en cours de construction, ces appartements sont vendus en « clé-sur-porte » et entièrement équipés (cuisine équipée incl.). A l’architecture moderne et épurée, ce bien se compose de 12 logements. Cet appartement sis au rez-de-chaussée bénéficie d'un spacieux séjour, de deux belles chambres, d’une terrasse avec jardin, d’un emplacement de parking couvert et d’une cave. L’immeuble est équipé d’un ascenseur et profite d’excellentes performances énergétiques PEB A ou A+. N’hésitez pas à nous contacter pour de plus amples renseignements. Vente sous le régime TVA 21% (droits d’enregistrement sur la quote-part terrain).
Type vastgoed Appartement
Prijs 234.500
Bewoonbare opp. 98
Aantal slaapkamers 2
Aantal badkamers 1