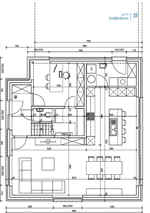
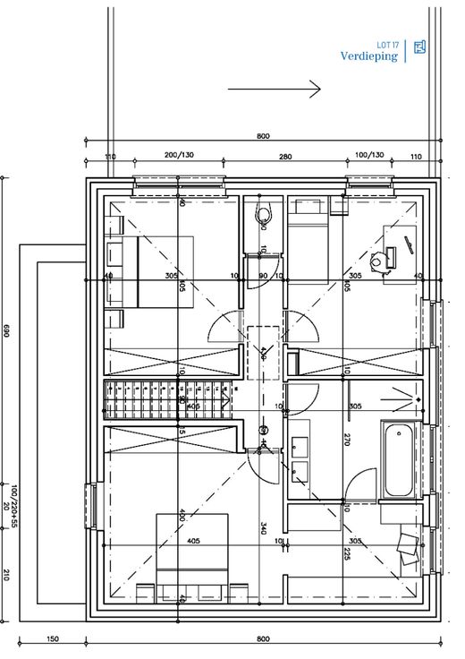
Te koop Zomergem (Lievegem), Karel Lodewijk Ledeganckstr. - Fase ...
Dit nieuwbouwproject met 2 loten voor open bebouwingen is gelegen in een rustige residentiële woonbuurt op 500m van het centrum van Zomergem. Dit perceel van 695m2 wordt te koop aangeboden met een nieuwbouwwoning op maat. Onder begeleiding van onze architecten en bouwadviseurs wordt een plan 100% op maat uitgewerkt. We luisteren hiervoor naar jullie wensen en verwachtingen en vertalen dat in een architecturale woning waarbij functionaliteit en charme moeiteloos gecombineerd worden. Tijdens het volledige ontwerp- en bouwproces staan onze specialisten ter beschikking. Het ervaren Huysman Bouw team coördineert de uitvoering van het project van A tot Z. Meer info? Contacteer onze bouwadviseur Ewout om de mogelijkheden te bespreken op 0497 588 888 of via mail naar contact@huysmanbouw.be
Renovatieplicht: onbekend