Te koop “La Romana” is een eigentijds nieuwbouwpro...

Beschrijving van   

Vergelijk realty's

Te koop “La Romana” is een eigentijds nieuwbouwproject

“La Romana” is een eigentijds nieuwbouwproject “La Romana” is een eigentijds nieuwbouwproject “La Romana” is een eigentijds nieuwbouwproject
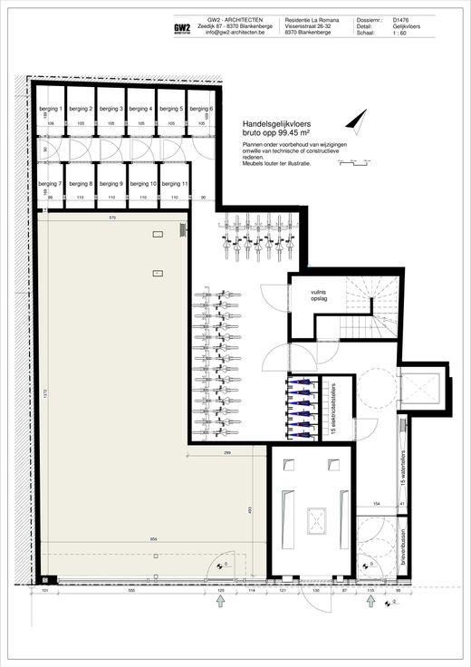
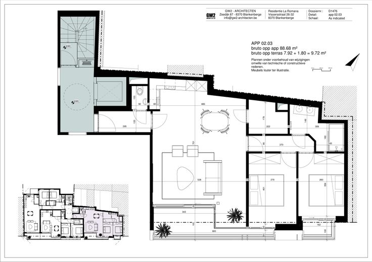
“La Romana” is een eigentijds nieuwbouwproject vlakbij de Zeedijk en pal in het centrum van Blankenberge bestaande uit: -drie typeverdiepingen met telkens 3 ruime 2-slaapkamerappartementen; -drie penthouses op de bovenste verdiepingen. Deze BEN-appartementen worden gekenmerkt door hun grote leefruimtes, fantastische terrassen en ruime slaapkamers. De penthouses hebben allen 2 slaapkamers (1 boven - 1 beneden), 2 badkamers (1 boven - 1 beneden) en meerdere terrassen. +++ Elk appartement heeft zonnepanelen. +++ Individuele warmtepomp / vloerverwarming. +++ Vuilnislokaal. +++ Autostandplaatsen in de onmiddellijke buurt. +++ Veel bergruimte: ruime berging in het appartment + extra grote individuele bergingen op het gelijkvloers met plaats voor fietsen.
Type vastgoed Appartement
Prijs 312.500
Bewoonbare opp. 98
Aantal slaapkamers 2
Aantal badkamers 1