Te koop Michelbeke - Nieuwstraat lot 1

Beschrijving van   

Vergelijk realty's

Te koop Michelbeke - Nieuwstraat lot 1

Michelbeke - Nieuwstraat lot 1 Michelbeke - Nieuwstraat lot 1 Michelbeke - Nieuwstraat lot 1 Michelbeke - Nieuwstraat lot 1
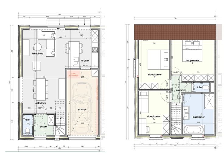
In het landelijke Michelbeke (Brakel) bouwt C-Nest Groep binnenkort 3 nieuwbouwwoningen met landelijke architectuur. Lot 1 in deze verkaveling is een halfopen woning met een ruime en lichtrijke leefruimte met open keuken, 3 slaapkamers, badkamer met dubbele lavabo, douche en bad, inpandige garage, ... Er wordt standaard vloerverwarming voorzien beneden en boven in combinatie met een lucht/water warmtepomp om zo een aangenaam klimaat het ganse jaar door te bekomen. Met een E-peil lager dan 30 zijn deze BEN woningen dan ook uiterst energiezuinig. Pluspunten: Vloerverwarming beneden en boven in combinatie met lucht/water warmtepomp; Afwerking volgens eigen keuze nog mogelijk; Inpandige garage; Rustig en landelijk wonen; ... Interesse in dit huis te koop in Michelbeke? Contacteer ons voor verdere informatie! Renovatieplicht: onbekend
Type vastgoed Huis
Prijs 398.500
Bewoonbare opp. 147
Aantal slaapkamers 3