Te koop Bouwgrond

Beschrijving van   

Vergelijk realty's

Te koop Bouwgrond

Bouwgrond Bouwgrond Bouwgrond Bouwgrond Bouwgrond Bouwgrond Bouwgrond Bouwgrond Bouwgrond Bouwgrond Bouwgrond Bouwgrond Bouwgrond Bouwgrond
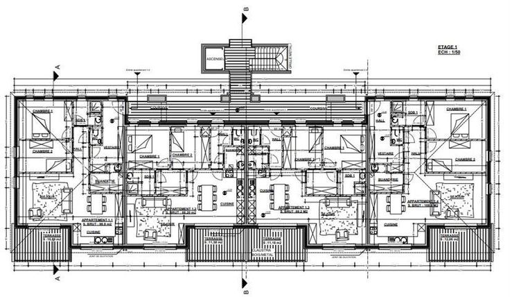
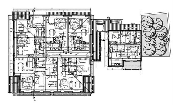
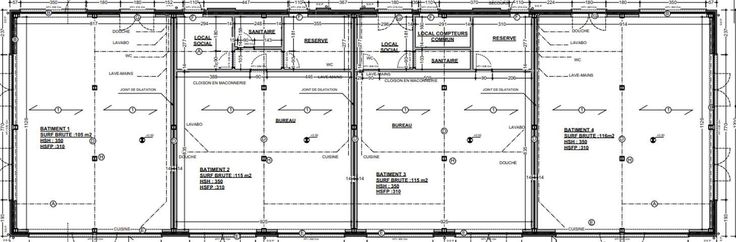
PROFONDEVILLE / SIX-BRAS Situé à deux pas du rond-point des Six-Bras, le long de la N951 Axe de passage: + 14.000 véhicules/jour Sur 49a projet immobilier comprenant: 4 bâtiments: Rez + 1 6 Rez-de-chaussée commerciaux : entre 98m² – 221m² / unité 2 Studios : 54m² chacun 1 Appartement 1ch : 71m² 12 Appartements 2 ch Studios : entre 74m² - 101m² / unité Surface commerces: 824m² Surface habitats : 1.129m² Totale : 1.953m² Parking: 71 emplacements aériens ASSET DEAL Infos et Visite Tel : +32470/56.15.02 Gilles Hallet
Type vastgoed Grond
Prijs 875.000