Te koop Huis

Beschrijving van   

Vergelijk realty's

Te koop Huis

Huis Huis Huis Huis Huis Huis Huis Huis Huis Huis Huis Huis Huis Huis Huis Huis Huis Huis Huis Huis Huis Huis Huis Huis
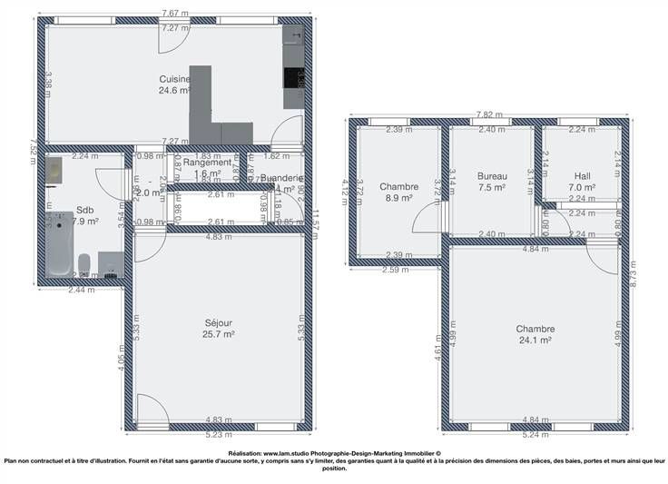
Sorry er is geen nederlandse vertaling beschikbaar. REF 983: Maison 2 façades 3 chambres (possible 4) avec Jardin proche de toutes commodité à 200m du Cora Composition: Rez: Séjour (26m²), Belle et grande cuisine équipée avec ilot central (24m²) donnant sur la terrasse (40m²),Cellier, Buanderie,Salle de bain (Bain et douche) au 1er: hall de nuit, 3 chambres (8-9-24m²). Jardin avec grande terrasse et chalet, Toiture isolée,CC au Gaz, Double vitrage PVC, Électricité BI-HORAIRE, Bonne cave, PEB E , RC 491€ FOAPD:155.000€
Type vastgoed Huis
Prijs 155.000
Bewoonbare opp. 120
Aantal slaapkamers 3
Aantal badkamers 1