Te koop Lichtrijk appartement met zonnig terras en...

Beschrijving van   

Vergelijk realty's

Te koop Lichtrijk appartement met zonnig terras en garage!

Lichtrijk appartement met zonnig terras en garage! Lichtrijk appartement met zonnig terras en garage! Lichtrijk appartement met zonnig terras en garage! Lichtrijk appartement met zonnig terras en garage! Lichtrijk appartement met zonnig terras en garage! Lichtrijk appartement met zonnig terras en garage! Lichtrijk appartement met zonnig terras en garage! Lichtrijk appartement met zonnig terras en garage! Lichtrijk appartement met zonnig terras en garage! Lichtrijk appartement met zonnig terras en garage!
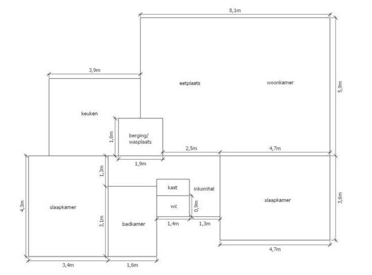
Dit ruime appartement van 106 m² bevindt zich op de eerste verdieping van een kleinschalig gebouw. Het appartement beschikt over een ruime inkomhal met apart toilet en vestiaire, een lichtrijke woonkamer met eetplaats, deels ingerichte keuken, twee grote slaapkamers, badkamer met wastafel, douche én bad, en een praktische berging/wasplaats met aansluiting voor een wasmachine. Achteraan geniet u van een ruim en zonnig terras, ideaal om te ontspannen. Dit appartement is voorzien van centrale verwarming op aardgas, videofoon, dubbele beglazing, gunstig EPC, ... Een grote troef is de bijhorende garage met automatische poort. Ideaal gelegen te Erembodegem, op wandelafstand van centrum Haaltert waar men winkels, scholen, ... kan terugvinden. De ligging biedt bovendien snelle toegang tot het op- en afrittencomplex richting Aalst, Gent en Brussel. Benieuwd naar dit appartement? Neem contact op met Tijl via tijl@immotijl.be of 0477 44 86 11.
Type vastgoed Appartement
Prijs 249.000
Bewoonbare opp. 106
Aantal slaapkamers 2
Aantal badkamers 1