Te koop Te koop: nieuwe thuis in hartje Waregem me...

Beschrijving van   

Vergelijk realty's

Te koop Te koop: nieuwe thuis in hartje Waregem met stadstuin

Te koop: nieuwe thuis in hartje Waregem met stadstuin Te koop: nieuwe thuis in hartje Waregem met stadstuin Te koop: nieuwe thuis in hartje Waregem met stadstuin Te koop: nieuwe thuis in hartje Waregem met stadstuin Te koop: nieuwe thuis in hartje Waregem met stadstuin Te koop: nieuwe thuis in hartje Waregem met stadstuin Te koop: nieuwe thuis in hartje Waregem met stadstuin Te koop: nieuwe thuis in hartje Waregem met stadstuin Te koop: nieuwe thuis in hartje Waregem met stadstuin Te koop: nieuwe thuis in hartje Waregem met stadstuin Te koop: nieuwe thuis in hartje Waregem met stadstuin Te koop: nieuwe thuis in hartje Waregem met stadstuin Te koop: nieuwe thuis in hartje Waregem met stadstuin Te koop: nieuwe thuis in hartje Waregem met stadstuin
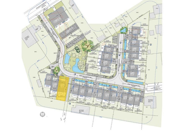
Te koop: nieuwe thuis in hartje Waregem met stadstuin Op zoek naar jouw droomwoning op een toplocatie? Deze moderne woning ligt op een steenworp van het centrum van Waregem, met alle voorzieningen binnen wandel- of fietsafstand: supermarkten, het station, zwembad, scholen, sportterreinen, park Baron Casier, gezellige bistro’s, restaurants en de wekelijkse markt op zaterdag. De woning (lot 3) biedt een zuidgerichte tuin, perfect voor wie wil genieten van de zon met minimaal onderhoud. Gelegen in een rustig nieuw woonproject zonder doorgaand verkeer, geniet je hier van privacy en veiligheid. Nieuwbouw = afwerking volgens jouw smaak, energiezuinig, weinig onderhoudskosten!  De woning is momenteel wind- en waterdicht. Jij kiest de afwerkingsmaterialen, en een verhuis binnen 6 maanden na jouw keuzes is mogelijk – intrek in 2025 is zeker een mogelijkheid! Dankzij zonnepanelen, ventilatiesysteem D en vloerverwarming op het gelijkvloers zijn de energiekosten laag en voldoet de woning aan toekomstige normen. Ook voor investeerders is dit een buitenkans: energiezuinige nieuwbouwwoningen zijn schaars op de huurmarkt, wat de verhuurbaarheid en huurprijs sterk in de hand werkt. Prijs: €423.570 (excl. kosten).  Meer weten?  Vraag nu ons verkoopdossier aan op T 0456/89 11 60 of via mail griet@altro-vastgoed.be
Type vastgoed Huis
Prijs 423.570
Bewoonbare opp. 171
Aantal slaapkamers 3
Aantal badkamers 1