Te koop Prima investering in historisch centrum

Beschrijving van   

Vergelijk realty's

Te koop Prima investering in historisch centrum

Prima investering in historisch centrum Prima investering in historisch centrum Prima investering in historisch centrum Prima investering in historisch centrum Prima investering in historisch centrum Prima investering in historisch centrum Prima investering in historisch centrum Prima investering in historisch centrum Prima investering in historisch centrum
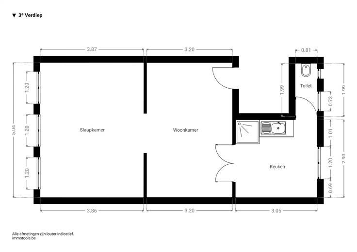
Op zoek naar een appartement of een slimme investering? Dan is dit eenslaapkamerappartement in het historisch centrum jouw kans. Realistisch rendement van 5%. In een rustig straatje vind je op de derde en bovenste verdieping dit appartement. Je komt er binnen in de leefruimte in het midden van het appartement, die je ook kunt omvormen tot slaapruimte, door te werken met enkele slim geplaatste kasten en gordijnen. Meteen valt de authentieke parketvloer op, net als de sierschouwen, hoge plafonds en de authentieke dubbele glazen binnendeur richting keuken. Vooraan heb je de lichte slaapkamer aan de straatkant, die je ook kunt gebruiken als leefruimte. De keuken bevindt zich achteraan, door de prachtige dubbele glazen deur. Met z’n 10m²is die ruim, inclusief een authentieke, kleurrijke cementtegelvloer. Je hebt hier ook een douchecabine, met daarnaast de witte keuken met z’n betegelde spatwand, een spoelbak, onder- en bovenkasten, losse koelkast met vriesvak, gasfornuis en aansluiting voor je wasmachine. Achteraan links heb je ook nog een apart toilet met een lavabo. Wel dient er verplicht rekening te houden met een vooropgesteld budget van € 10.000,00 per appartement op rekening van de vereniging van mede-eigenaars. Dit in het kader van de renovatie van de gemeenschappelijke delen, waaronder het dak, de gangen en de gevels. Deze werken zullen resulteren in een uiteindelijke EPC B score! Voor meer info: https://www.immovasta.be/panden/gegevens/13660/
Type vastgoed Huis
Prijs 169.000
Bewoonbare opp. 57
Aantal slaapkamers 1