Te koop Huis

Beschrijving van   

Vergelijk realty's

Te koop Huis

Huis Huis Huis Huis Huis Huis Huis
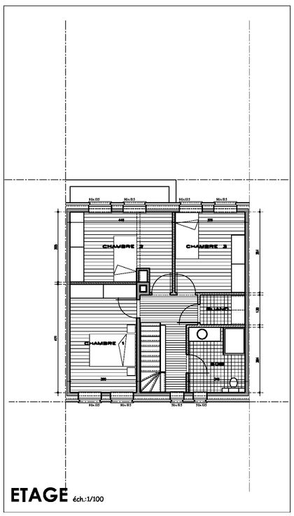
Dans une charmante localité du nom de Fayt-Lez-Manage, au cœur de la région de la Louvière, Maisons Compère a le plaisir de vous présenter deux magnifiques terrains à bâtir d'une superficie de 506 et 507 m², conçus pour accueillir chacun des habitations 3 façades, dotées d'un garage privé. Idéalement situés à moins de 2 km de l'autoroute E42, ces terrains offrent un accès simplifié aux villes de Mons et de Charleroi. De plus, vous profiterez d'une proximité appréciable avec le centre de la Louvière et son attractif centre commercial, le tout dans une rue paisible en cul-de-sac. Nous vous offrons la possibilité de réaliser une construction à trois façades, vendue soit individuellement, soit en ensemble. Chaque modèle se compose d'un rez-de-chaussée incluant un garage pour un véhicule, ainsi qu'un hall d'entrée menant à un séjour lumineux et à une cuisine fonctionnelle. À l'étage, un hall de nuit vous conduira à trois chambres à coucher, une buanderie pratique ainsi qu'une salle de bains élégante. Ce projet est entièrement modulable, vous permettant ainsi de l'adapter parfaitement à vos envies et besoins spécifiques. Le prix de l'ensemble terrain + construction est de 243.650,13 € HTVA et frais d'architecte. Le prix indiqué pourra varier en fonction de la modification du projet. Infos : Mr Mariani au 0475/23.62.76
Type vastgoed Huis
Prijs 243.650
Aantal slaapkamers 3
Aantal badkamers 1