Te koop Halfopen nieuwbouwoning met tuin en garage...

Beschrijving van   

Vergelijk realty's

Te koop Halfopen nieuwbouwoning met tuin en garage (Pennestraat)

Halfopen nieuwbouwoning met tuin en garage (Pennestraat) Halfopen nieuwbouwoning met tuin en garage (Pennestraat) Halfopen nieuwbouwoning met tuin en garage (Pennestraat)
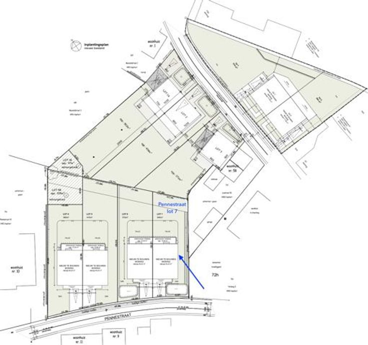
9 NIEUWBOUWWONINGEN TE KERKSKEN – UW NIEUWE THUIS IN EEN RUSTIGE, GROENE OMGEVING! Ontdek deze 9 prachtige nieuwbouwwoningen, ideaal gelegen in het charmante Kerksken, een oase van rust met tal van wandelwegen in de buurt. Perfect voor wie houdt van een landelijke omgeving, zonder in te boeten op comfort en bereikbaarheid. De natuur rondom de woningen en in de buurt draagt bij tot een gezonde en rustige leefomgeving. Alle winkels, scholen en zorgverlening is zeer vlot bereikbaar op ongeveer 1 km. Dit project combineert moderne architectuur met de charme van een rustige woonomgeving. Een droomlocatie voor gezinnen, jonge koppels en iedereen die het beste zoekt van twee werelden: rust en gemak. De woningen beschikken over hoogwaardige materialen en alle moderne technieken zoals een warmtepomp, vloerverwarming en hernieuwbare energie waardoor je een lage energiefactuur zal bekomen. Alle woningen beschikken over 3 slaapkamers, luxueuze badkamer, een grote lichtrijke leefruimte met semi-open keuken, een handige berging grenzend aan de keuken. Deze geeft toegang naar het achtergelegen terras. De zolder biedt een extra ideale bergruimte. Er is keuzevrijheid in ons aanbod: met garage of met carport, met warmtepomp of gascondensatieketel. Deze woningen verdienen je aandacht. Neem vandaag nog contact op voor meer informatie of een bezoek op het kantoor van Aeygems Vastgoed!
Type vastgoed Huis
Prijs 412.500
Bewoonbare opp. 197
Aantal slaapkamers 3
Aantal badkamers 1