Te koop Gerenoveerde kantoorruimte

Beschrijving van   

Vergelijk realty's

Te koop Gerenoveerde kantoorruimte

Gerenoveerde kantoorruimte Gerenoveerde kantoorruimte Gerenoveerde kantoorruimte Gerenoveerde kantoorruimte Gerenoveerde kantoorruimte Gerenoveerde kantoorruimte Gerenoveerde kantoorruimte Gerenoveerde kantoorruimte Gerenoveerde kantoorruimte Gerenoveerde kantoorruimte
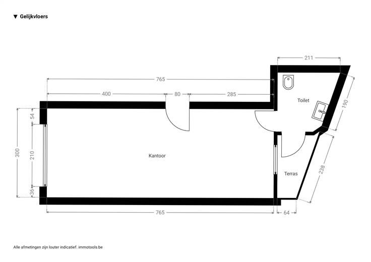
Recent gerenoveerde kantoorruimte op toplocatie Antwerpen Zuid Een kantoorruimte waar je geen omkijken naar hebt, dat is een prima investering, en al helemaal wanneer die zich op het Antwerpse Zuid bevindt! De uitstekende locatie qua mobiliteit en nabijheid van het vlinderpaleis biedt veel opportuniteiten. In een kleinschalig, verzorgd gebouw met een strakke witte gevel, in de Brusselstraat 69, vind je hier op het gelijkvloers dit instapklare kantoor. Je komt er binnen in de gemeenschappelijke inkomhal, die een lichtgrijze tegelvloer heeft en een originele houten trap achteraan. Meteen rechts stap je de kantoorruimte binnen, waar de elegante, donkerblauwe tegelvloer opvalt, net als het licht dat hier mooi binnenstroomt, en het zicht op het vlinderpaleis en een natuurpark. Meteen bij het binnenkomen links heb je een aparte nis waar je je jassen in kwijt kunt en die je makkelijk kunt afsluiten met een mooi gordijn, bijvoorbeeld. Maar evengoed gebruik je deze ruime als opslagplaats, al heb je ook nog een droge kelderberging van 5 m²! Mede dankzij de hoge plafonds heb je hier een kantoorruimte met een ruimtelijk gevoel. Achteraan heb je nog een aparte ruimte met een hangtoilet, lavabo, spiegel en handdoekendroger, en ook de condensatieketel zit hier weggewerkt. Van hieruit heb je toegang tot het kleine Oost - gerichte koertje van een kleine 3 m². Voor meer info: https://www.immovasta.be/panden/gegevens/13035/
Type vastgoed Huis
Prijs 165.000
Bewoonbare opp. 35