Te koop Kantoren

Beschrijving van   

Vergelijk realty's

Te koop Kantoren

Kantoren Kantoren Kantoren Kantoren Kantoren Kantoren Kantoren Kantoren Kantoren Kantoren
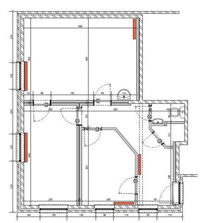
HOUSY vous propose cet espace professionnel idéalement situé sur la Place d'Arquennes, au rez-de-chaussée d'un petit immeuble. Il est doté d'une entrée séparée de l'immeuble avec parlophone. Il comprend un hall d'entrée, une salle d'attente (6 pers.), 2 bureaux/cabinets (19m² et 11m²), un WC et local technique. Il se situe à proximité des grands axes (E19-A54-E42) et juste devant un arrêt de bus. Charges communes : 80€/mois. Possibilité d'en faire un appartement 1 chambre (voir plan d'aménagement et informations en agence). Faire offre à partir de 150.000€. Informations et visites : HOUSY : 067/70.01.70.
Type vastgoed Commercieel
Prijs 150.000
Bewoonbare opp. 50