Te koop Appartementsblok

Beschrijving van   

Vergelijk realty's

Te koop Appartementsblok

Appartementsblok Appartementsblok Appartementsblok Appartementsblok Appartementsblok Appartementsblok Appartementsblok Appartementsblok Appartementsblok Appartementsblok Appartementsblok Appartementsblok Appartementsblok Appartementsblok Appartementsblok Appartementsblok
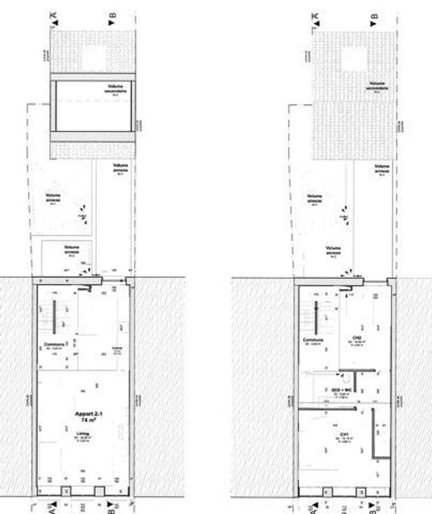
Idéalement situé dans le centre de Gosselies (proche de l'aéroport, des transports en commun, des commerces,...) , bâtiment en cours de rénovation pour la création de 3 appartements (permis d’urbanisme accordé pour 3 logements) répartis sur 4 niveaux. Au rez-de-chaussée : 1 appartement de 61m² avec une chambre (aménagé en partie comme airbnb -- revenu de +/- 800€/mois), au 1er étage : 1 appartement de 73m² avec une chambre et une terrasse. Au 2ième étage : 1 appartement duplex (ou triplex si on ajoute le grenier) de 74m² avec 2 chambres. Au 4ième étage, comble de +/- 45m² aménageable en une 3ième chambre avec salle de douche pour le duplex (collocation possible pour augmenter la rentabilité). L’immeuble donne sur 2 rues (rue Modeste Cornil et rue d’Assaut). Faire offre à partir de 150.000€. (sous réserve de l’accord des propriétaires ou d’une offre supérieure). Visite sur rendez-vous au 0498/665916 (descriptif est donné à titre indicatif et non contractuel).
Type vastgoed Huis
Prijs 150.000
Aantal slaapkamers 4
Aantal badkamers 3